
4 Photos
PROJECT RERA ID : Rera Not Applicable
1008 sq ft 2 BHK 2T Apartment in Priya Constructions Mugalivakkam
Price on request
Project Location
Mugalivakkam, Chennai
Basic Details
Amenities8
Specifications
Property Specifications
- CompletedStatus
- Dec'13Possession Start Date
- 1008 sq ftSize
- 24Total Launched apartments
- May'11Launch Date
- ResaleAvailability
There is an availability of 2 BHK apartments in the Mugalivakkam region of Chennai. These apartments are the project of Priya Constructions organization and they are going to be launched soon. All the necessities like restaurant, play school, bus station, train station, hospital, bank, ATM, petrol pump all these are available in the neighbourhood. The other different amenities provided by the project is a well maintained system for intercom facility which is provided to each and every apartment ...more
Price & Floorplan
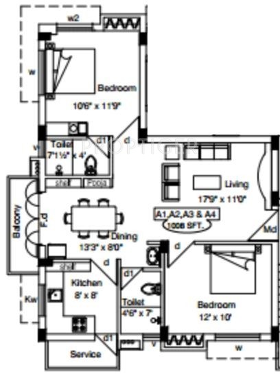
2BHK+2T (1,008 sq ft)
Price On Request

2D
- 2 Bathrooms
- 1 Balcony
- 2 Bedrooms
Report Error
Gallery
Priya MugalivakkamElevation
Priya MugalivakkamFloor Plans
Priya MugalivakkamNeighbourhood
Other properties in Priya Constructions Mugalivakkam
- 2 BHK
Contact NRI Helpdesk on
Whatsapp(Chat Only)
Whatsapp(Chat Only)
+91-96939-69347
Contact Helpdesk on
Whatsapp(Chat Only)
Whatsapp(Chat Only)
+91-96939-69347
About Priya Constructions

- 21
Total Projects - 0
Ongoing Projects - RERA ID
Priya Constructions is a leading real estate company which is synonymous with reliability. Founded about a decade ago, Priya Constructions is famous for delivering quality projects. The portfolio of property by Priya Constructions includes multiple residential projects in and around Chennai. Unique Selling Point The company believes in transparency and progressiveness. It installs latest technologies, mobilises expertise and resources to their optimum capacities. The company develops projects a... read more
Similar Properties
- PT ASSIST
Dakshin 2BHK+2Tby Dakshin Construction1st Cross, 8th Street, Ganesh Avenue, Shakthi Nagar, Porur, Chennai.Price on request - PT ASSIST
BBCL 2BHK+2T (1,040 sq ft)by BBCL Prime Constructions Private LimitedAnna Salai, Chinnaporur, PorurPrice on request - PT ASSIST
Dakshin 3BHK+3Tby Dakshin Construction1st Cross, 8th Street, Ganesh Avenue, Shakthi Nagar, Porur, Chennai.Price on request - PT ASSIST
Jasmine 2BHK+2T (963 sq ft)by JasminePorurPrice on request - PT ASSIST
Anuna 2BHK+2T (965 sq ft)by Anuna BuildersValasaravakkam, ChennaiPrice on request
Discuss about Priya Mugalivakkam
comment
Disclaimer
PropTiger.com is not marketing this real estate project (“Project”) and is not acting on behalf of the developer of this Project. The Project has been displayed for information purposes only. The information displayed here is not provided by the developer and hence shall not be construed as an offer for sale or an advertisement for sale by PropTiger.com or by the developer.
The information and data published herein with respect to this Project are collected from publicly available sources. PropTiger.com does not validate or confirm the veracity of the information or guarantee its authenticity or the compliance of the Project with applicable law in particular the Real Estate (Regulation and Development) Act, 2016 (“Act”). Read Disclaimer
The information and data published herein with respect to this Project are collected from publicly available sources. PropTiger.com does not validate or confirm the veracity of the information or guarantee its authenticity or the compliance of the Project with applicable law in particular the Real Estate (Regulation and Development) Act, 2016 (“Act”). Read Disclaimer











