
6 Photos
1274 sq ft 3 BHK 3T Apartment in Deccan Builders Orleans
Price on request
Project Location
Medavakkam, Chennai
Basic Details
Amenities12
Specifications
Property Specifications
- CompletedStatus
- Jun'13Possession Start Date
- 1274 sq ftSize
- 22Total Launched apartments
- May'12Launch Date
- ResaleAvailability
Launched by Deccan Builders, Orleans, is a premium housing project located at Medavakkam in Chennai. Offering 2, 3 BHK Apartment in OMR are available from 987 sqft to 1374 sqft. This project hosts amenities like Garbage Chute , Rain Water Harvesting, Internet Facility, Swimming Pool, Children's play area etc. The project is Completed project and possession in Jul 13.
Payment Plans

Price & Floorplan
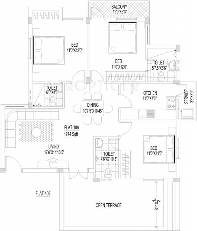
3BHK+3T (1,274 sq ft)
Price On Request

2D
- 3 Bathrooms
- 1 Balcony
- 3 Bedrooms
Report Error
Gallery
Deccan OrleansElevation
Deccan OrleansFloor Plans
Other properties in Deccan Builders Orleans
- 2 BHK
- 3 BHK
Contact NRI Helpdesk on
Whatsapp(Chat Only)
Whatsapp(Chat Only)
+91-96939-69347
Contact Helpdesk on
Whatsapp(Chat Only)
Whatsapp(Chat Only)
+91-96939-69347
About Deccan Builders

- 1
Total Projects - 0
Ongoing Projects - RERA ID
Similar Properties
- PT ASSIST
Pearl 3BHK+3Tby Pearl1 B, Swamiya Nagar Main Road, Madavakkam, Chennai.Price on request - PT ASSIST
Jamals 3BHK+3T (1,285 sq ft)by JamalsPlot 10 & 11 Jayachandran Nagar, Tambaram, Velachery Road, PallikaranaiPrice on request - PT ASSIST
Newry 2BHK+2T (1,290 sq ft)by Newry Properties155/156, Jeyachandran Nagar 1st Main Road, Bhel Nagar, MedavakkamPrice on request - PT ASSIST
Natwest 2BHK+2T (1,249 sq ft)by NatwestK.P. OIL MILL, Velachery Tambaram Road, Pallikaranai, ChennaiPrice on request - PT ASSIST
Pearl 3BHK+3T (1,300 sq ft)by PearlPlot No. 34, Jayachandran Nagar, Medavakkam, ChennaiPrice on request
Discuss about Deccan Orleans
comment
Disclaimer
PropTiger.com is not marketing this real estate project (“Project”) and is not acting on behalf of the developer of this Project. The Project has been displayed for information purposes only. The information displayed here is not provided by the developer and hence shall not be construed as an offer for sale or an advertisement for sale by PropTiger.com or by the developer.
The information and data published herein with respect to this Project are collected from publicly available sources. PropTiger.com does not validate or confirm the veracity of the information or guarantee its authenticity or the compliance of the Project with applicable law in particular the Real Estate (Regulation and Development) Act, 2016 (“Act”). Read Disclaimer
The information and data published herein with respect to this Project are collected from publicly available sources. PropTiger.com does not validate or confirm the veracity of the information or guarantee its authenticity or the compliance of the Project with applicable law in particular the Real Estate (Regulation and Development) Act, 2016 (“Act”). Read Disclaimer





















