
9 Photos
1233 sq ft 2 BHK 2T Apartment in N S Brothers Group SLV Elite
Price on request
Project Location
Whitefield Hope Farm Junction, Bangalore
 Basic Details
 Amenities12
 Specifications
Property Specifications
- CompletedStatus
 - Feb'13Possession Start Date
 - 1233 sq ftSize
 - 120Total Launched apartments
 - May'10Launch Date
 - ResaleAvailability
 
Salient Features
- Rainwater harvesting, children play area are some of the prominent amenities
 - Accessibility to key landmarks
 - Schools, banks in close vicinity
 
SLV Elite, Whitefield, Bangalore is Precisely planned for the Modern day city dweller, a pollution free living environment and wide open areas that offer not just the luxury of space, but peace of mind as well. The complex is in close vicinity to Schools, Shopping, Hospitals and Entertainment , making it an ideal place to live .It offers 2BHK Luxurious Apartments And Surrounded with most beautiful palaces.
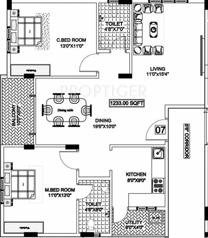
Price & Floorplan
2BHK+2T (1,233 sq ft)
Price On Request

 2D
- 2 Bathrooms
 - 1 Balcony
 - 2 Bedrooms
 
Report Error 
Gallery
N S Brothers Group SLV EliteElevation
N S Brothers Group SLV EliteFloor Plans
N S Brothers Group SLV EliteNeighbourhood
Other properties in N S Brothers Group SLV Elite
- 2 BHK
 
Contact NRI Helpdesk on 
Whatsapp(Chat Only)
Whatsapp(Chat Only)
+91-96939-69347
Contact Helpdesk on 
Whatsapp(Chat Only)
Whatsapp(Chat Only)
+91-96939-69347
About N S Brothers Group

- 21 
Years of Experience - 1 
Total Projects - 0 
Ongoing Projects - RERA ID
 
NS Brothers Group has a plethora of living solutions right from the residential, commercial, interiors and so on. There is an indelible mark that NS Brothers Group leaves in every venture. We are coming up various new projects in every part of the city. Our approach towards each constructing project is one of commitment and trust. We take on every project with high zeal and commitment is our bench mark. NS Brothers Group real estate business is build up on the pillars of trust and loyalty. Our m... read more
Similar Properties
- PT ASSIST
Vaswani 2BHK+2T (1,200 sq ft) + Study Roomby Vaswani GroupVarthurPrice on request - PT ASSIST
AR 2BHK+2T (1,180 sq ft)by ARVarthur, BangalorePrice on request - PT ASSIST
Prestige 2BHK+2T (1,297 sq ft)by Prestige Group16, Whitefield Main Rd, Thigalarapalya, HoodiPrice on request - PT ASSIST
Green 3BHK+3T (1,154 sq ft)by Green EnvironsVarthur Road, Whitefield Hope Farm JunctionPrice on request - PT ASSIST
Green 2BHK+2T (1,140 sq ft)by Green EnvironsVarthur Road, Whitefield Hope Farm JunctionPrice on request 
Discuss about N S Brothers Group SLV Elite
comment
Disclaimer
PropTiger.com is not marketing this real estate project (“Project”) and is not acting on behalf of the developer of this Project. The Project has been displayed for information purposes only. The information displayed here is not provided by the developer and hence shall not be construed as an offer for sale or an advertisement for sale by PropTiger.com or by the developer.
The information and data published herein with respect to this Project are collected from publicly available sources. PropTiger.com does not validate or confirm the veracity of the information or guarantee its authenticity or the compliance of the Project with applicable law in particular the Real Estate (Regulation and Development) Act, 2016 (“Act”). Read Disclaimer
The information and data published herein with respect to this Project are collected from publicly available sources. PropTiger.com does not validate or confirm the veracity of the information or guarantee its authenticity or the compliance of the Project with applicable law in particular the Real Estate (Regulation and Development) Act, 2016 (“Act”). Read Disclaimer


























