
PROJECT RERA ID : PR/GJ/VADODARA/VADODARA/Vadodara Urban Development Authority/RAA07983/A1R/061124/310125
769 sq ft 2 BHK 2T Apartment in Kinjal Harishchandra Mehta Proprietor Leo Enterprise Lake Tree
Price on request
Project Location
Sayajipura, Vadodara
Basic Details
Amenities12
Property Specifications
- LaunchStatus
- Jan'25Possession Start Date
- 2.46438196937204 AcresTotal Area
- Dec'20Launch Date
- NewAvailability
It offers 2, 3 BHK Apartment in Vadodara East. The project is Launch project and possession in Jan 25. Among the many luxurious amenities that the project boasts are Garbage Disposal, Community Hall, Infinity Pool, 24 X 7 Security, Energy management etc.
Price & Floorplan
2BHK+2T (768.97 sq ft)
Price On Request

2D
- 2 Bathrooms
- 2 Bedrooms
- 769 sqft
carpet area
property size here is carpet area. Built-up area is now available
Report Error
Gallery
Kinjal Lake TreeElevation
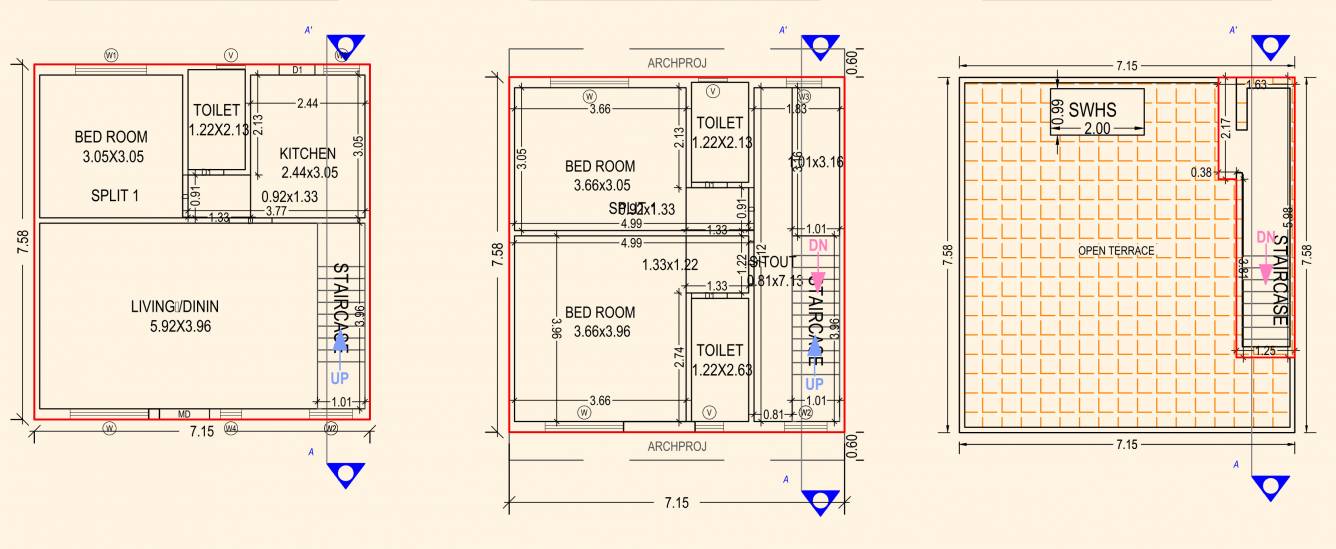
Kinjal Lake TreeFloor Plans
Kinjal Lake TreeNeighbourhood
Other properties in Kinjal Harishchandra Mehta Proprietor Leo Enterprise Lake Tree
Contact NRI Helpdesk on
Whatsapp(Chat Only)
Whatsapp(Chat Only)
+91-96939-69347
Contact Helpdesk on
Whatsapp(Chat Only)
Whatsapp(Chat Only)
+91-96939-69347
About Kinjal Harishchandra Mehta Proprietor Leo Enterprise
Kinjal Harishchandra Mehta Proprietor Leo Enterprise
- 1
Total Projects - 1
Ongoing Projects - RERA ID
Similar Properties
- PT ASSIST
1BHK+1T (495 sq ft)by Savitaben N MakwanaSurvey No. 42,43,44 (Block No.20) ,HanumanPura, WaghodiaPrice on request - PT ASSIST
Sangani 3BHK+3T (1,046.91 sq ft)by Sangani InfrastructureNear American School Of Baroda, Vadodara Aajwa Road, SayajipuraPrice on request - PT ASSIST
Shiv Shakti 3BHK+3T (907.94 sq ft) + Pooja Roomby Shiv Shakti RealityOpp Taksh Aura, Bh L & T Knowledge City, Ajwa Waghodia Road, AnkholPrice on request - PT ASSIST
Shiv Shakti 2BHK+2T (610.64 sq ft)by Shiv Shakti RealityOpp Taksh Aura, Bh L & T Knowledge City, Ajwa Waghodia Road, AnkholPrice on request - PT ASSIST
ZM 2BHK+2T (493 sq ft)by ZM EnterpriseNear Sardar Estate Char Rasta, Ajwa Waghodiya Ring Road, MadhavpuraPrice on request
Discuss about Kinjal Lake Tree
comment
Disclaimer
PropTiger.com is not marketing this real estate project (“Project”) and is not acting on behalf of the developer of this Project. The Project has been displayed for information purposes only. The information displayed here is not provided by the developer and hence shall not be construed as an offer for sale or an advertisement for sale by PropTiger.com or by the developer.
The information and data published herein with respect to this Project are collected from publicly available sources. PropTiger.com does not validate or confirm the veracity of the information or guarantee its authenticity or the compliance of the Project with applicable law in particular the Real Estate (Regulation and Development) Act, 2016 (“Act”). Read Disclaimer
The information and data published herein with respect to this Project are collected from publicly available sources. PropTiger.com does not validate or confirm the veracity of the information or guarantee its authenticity or the compliance of the Project with applicable law in particular the Real Estate (Regulation and Development) Act, 2016 (“Act”). Read Disclaimer












