

Price on request
Builder Price
Configuration
3, 4 BHK
Carpet Area
1,274 - 2,154 sq ft
Possession Status
Launch
Overview
- Possession Start DateMar'27
- StatusLaunch
- Total Area0.59 Acres
- Total Launched apartments49
- Launch DateJan'22
- AvailabilityNew
- RERA IDPR/GJ/VADODARA/VADODARA/Others/MAA10286/A1M/050123
Project Specifications
Doors
Internal:
Laminated Flush Door
Main:
Solid Wood Frame With Flush Door Shutter
Flooring
Balcony:
Anti Skid Tiles
Kitchen:
Vitrified Tiles
Living/Dining:
Vitrified Tiles
Master Bedroom:
Vitrified Tiles
Other Bedroom:
Vitrified Tiles
Toilets:
Anti Skid Tiles
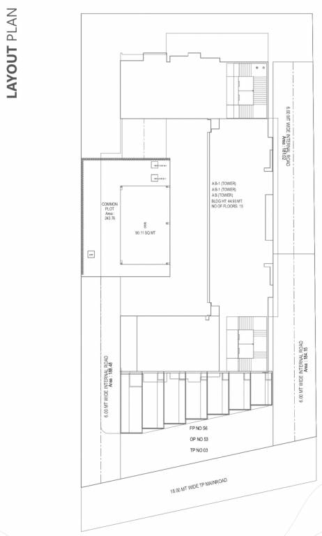
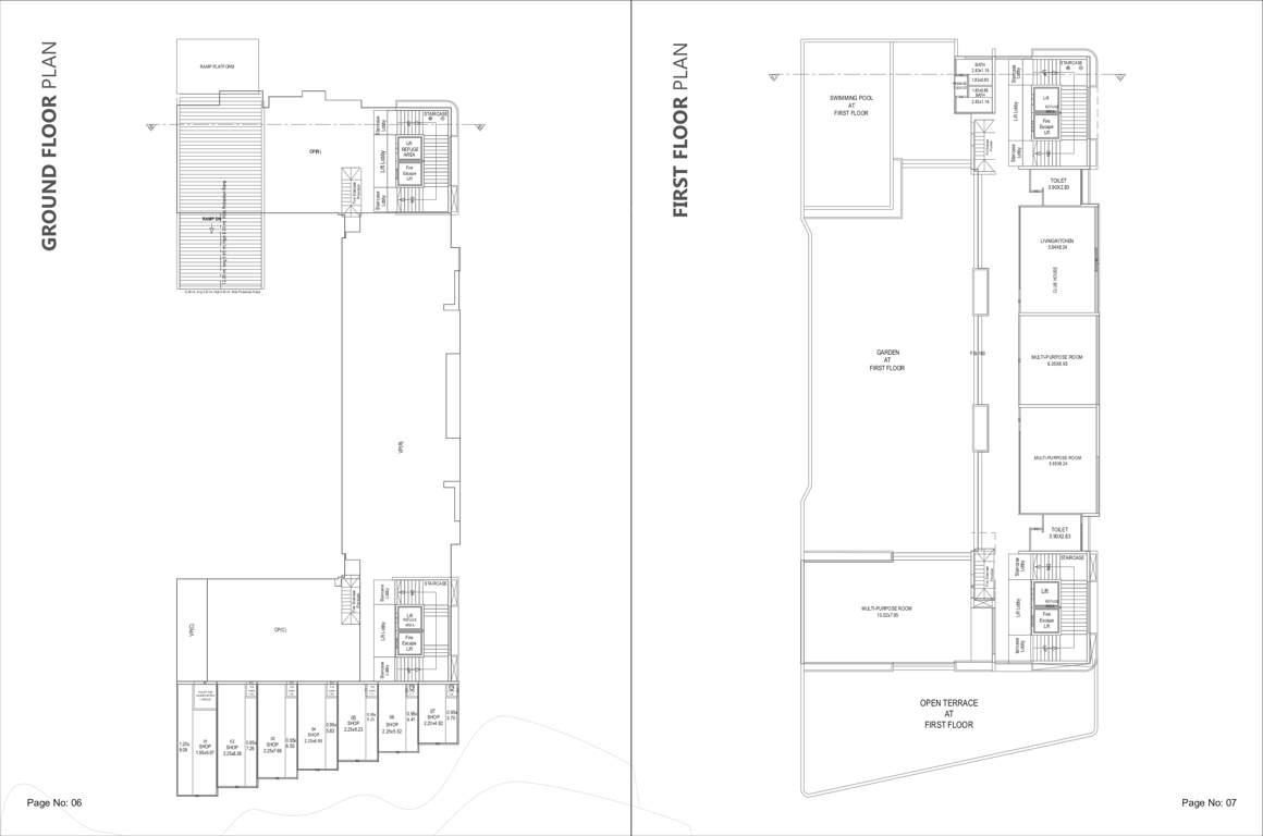
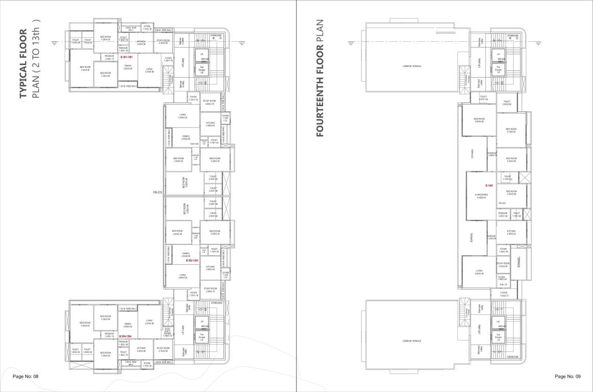
Vaibhav Wisteria Floor Plans
- 3 BHK
- 4 BHK
-
-
Vaibhav Wisteria Amenities
- 24X7 Water Supply
- 24 X 7 Security
- Fire Fighting System
- Full Power Backup
- Internal Roads
- Sewage Treatment Plant
- Video Door Security
- Storm Water Drains
- Water Conservation, Rain water Harvesting
Vaibhav Wisteria Gallery
About Vaibhav Corporation

- Total Projects10
- Ongoing Projects3


















