

₹ 44.99 L
Builder Price
Home Loan EMI starts at ₹ 34,882See inclusions
Configuration
3 BHK
Builtup area
1,520 sq ft
Possession Status
Under Construction
Avg. Price
₹ 2,960 sq.ft
Overview
- Possession Start DateJul'25
- StatusUnder Construction
- Total Launched villas466
- Launch DateAug'24
- AvailabilityNew and Resale
Salient Features
- Only For Muslim Family.
- First time Premium Bungalows for Muslim Family in Olpad Road.
- Only one Project for Muslim families with all Amenities.
- No Brick and Block Works
- Totally RCC Construction in Olpad
Project Specifications
Fittings
Toilets:
Concealed Plumbing
Kitchen:
Granite platform with stainless steel sink
Flooring
Toilets:
Anti Skid Vitrified Tiles
Other Bedroom:
Vitrified Flooring
Kitchen:
Vitrified Flooring
Master Bedroom:
Vitrified Flooring
Balcony:
Anti Skid Vitrified Tiles
Living/Dining:
Vitrified Flooring
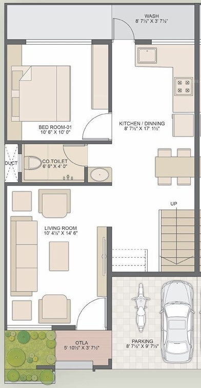
Shifa Villa Floor Plans
- 3 BHK
₹ 44.99 L
Shifa Villa Amenities
- Children's play area
- Gymnasium
- Basketball Court
- Indoor Games
- 24x7 CCTV Surveillance
- Gazebo
- Party Lawn
- Yoga/ Meditation Area
- Senior Citizen Sitout
- Concierge Service
- Cycling & Jogging Track
- Entrance Gate Security Cabin
- Landscape Garden and Tree Planting
Shifa Villa Gallery
About Shifa Developers Surat
- Total Projects1
- Ongoing Projects1




























