

Price on request
Builder Price
Configuration
2 BHK
Carpet Area
615 - 621 sq ft
Possession Status
Launch
Overview
- Possession Start DateDec'28
- StatusLaunch
- Total Area0.72 Acres
- Total Launched apartments168
- Launch DateJul'23
- AvailabilityNew
- RERA IDPR/GJ/SURAT/CHORASI/SUDA/RAA12141/100723
Project Specifications
Doors
Internal:
Laminated Flush Door
Main:
Decorative Main Door
Flooring
Kitchen:
Vitrified Tiles
Living/Dining:
Vitrified Tiles
Other Bedroom:
Vitrified Tiles
Toilets:
Anti Skid Ceramic Tiles
Master Bedroom:
Vitrified tile flooring.
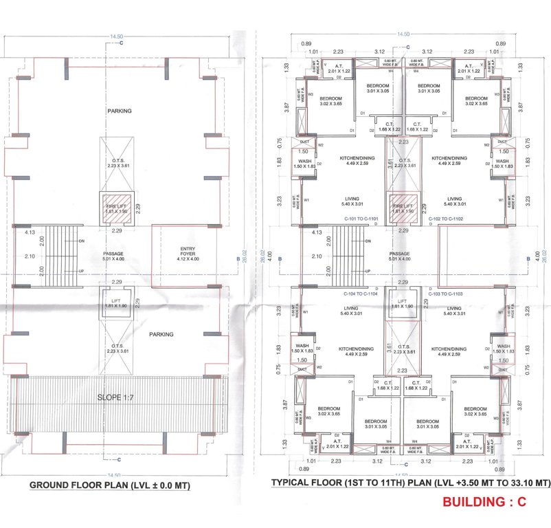
Shree Hari Nilgiri Heights Floor Plans
- 2 BHK
-
Shree Hari Nilgiri Heights Amenities
- Club House
- Children's play area
- Car Parking
- Jogging Track
- Indoor Games
- Multipurpose Room
- Amphitheater
- 24X7 Water Supply
- Rain Water Harvesting
- Gated Community
- 24 X 7 Security
- CCTV
- Full Power Backup
- Internal Roads
- Lift(s)
- Sewage Treatment Plant
- Energy management
- Landscape Garden and Tree Planting
- Solid Waste Management And Disposal
- Street Lighting
- Water Conservation, Rain water Harvesting
- Electrification(Transformer, Solar Energy etc)
Shree Hari Nilgiri Heights Gallery
About Shree Hari Corporation Surat

- Total Projects1
- Ongoing Projects1
























