

Price on request
Builder Price
Configuration
3 BHK
Carpet Area
897 sq ft
Possession Status
Completed
Overview
- Possession Start DateMay'22
- StatusCompleted
- Total Area0.12 Acres
- Launch DateMar'19
- AvailabilityResale
- RERA IDPR/GJ/RAJKOT/RAJKOT/Others/RAA06056/190919
Salient Features
- 3 open side properties
- it has74% open space
- Schools, medical facilities, hospitals, educational institutes, restaurants, banks, multiplexes, cineplex are some of the civic amenities
Project Specifications
Walls
Exterior:
Acrylic Paint
Toilets:
Ceramic Tiles
Kitchen:
Glazed Designer Tiles
Interior:
Putty Finish
Doors
Main:
Designer Door
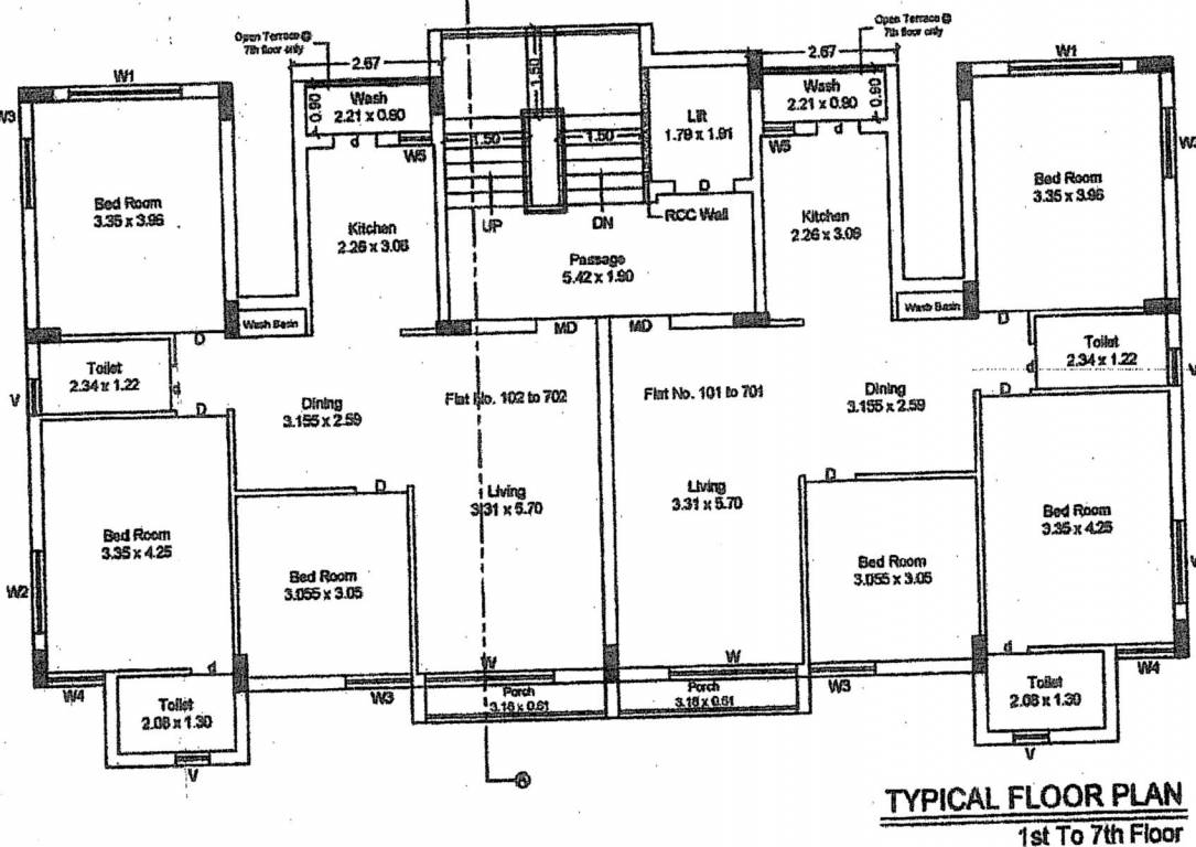
Shreeji Height Floor Plans
- 3 BHK
-
Shreeji Height Amenities
- CCTV
- Closed Car Parking
- Fire Fighting System
- Lift Available
- Children\\\'s play area
- 24X7 Water Supply
- Rain Water Harvesting
- Gated Community
- Car Parking
- Paved Compound
- Security Cabin
- Senior Citizen Sitout
Shreeji Height Gallery
About Shreeji Buildcon Rajkot

- Total Projects4
- Ongoing Projects2




















