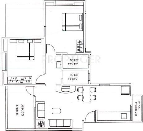
2,3 BHK Apartment
952 - 1,324 sq ft



Kamdhenu Siddhi is taking an imposing shape near Mahatma Society, Kothrud. 2/3 BHK flats with an option of terraces offer maximum convenience and comfort. Elegantly designed homes with open courtyard welcomes natural light and fresh air in abundance. Your wish list for an ideal home need some imagination at KAMDHENU SIDDHI as every amenity that you longed for is made available right from the word go.

