

Price on request
Builder Price
Configuration
3, 4 BHK
Carpet Area
75,993 - 101,611 sq ft
Possession Status
Under Construction
Overview
- Possession Start DateJun'29
- StatusUnder Construction
- Total Area1 Acres
- Launch DateJul'24
- AvailabilityNew
- RERA IDRERAP07212024091939-1
More about Vantage Reetanjan
Launched by Vantage Constructions, Reetanjan, is a premium housing project located at Danapur in Patna. Offering 3, 4 BHK Apartment in Patna West are available from 0 sqft. This project hosts amenities like Closed Car Parking etc. The project is Under Construction project and possession in Jun 29.
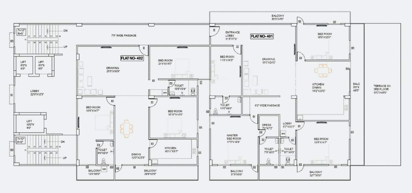
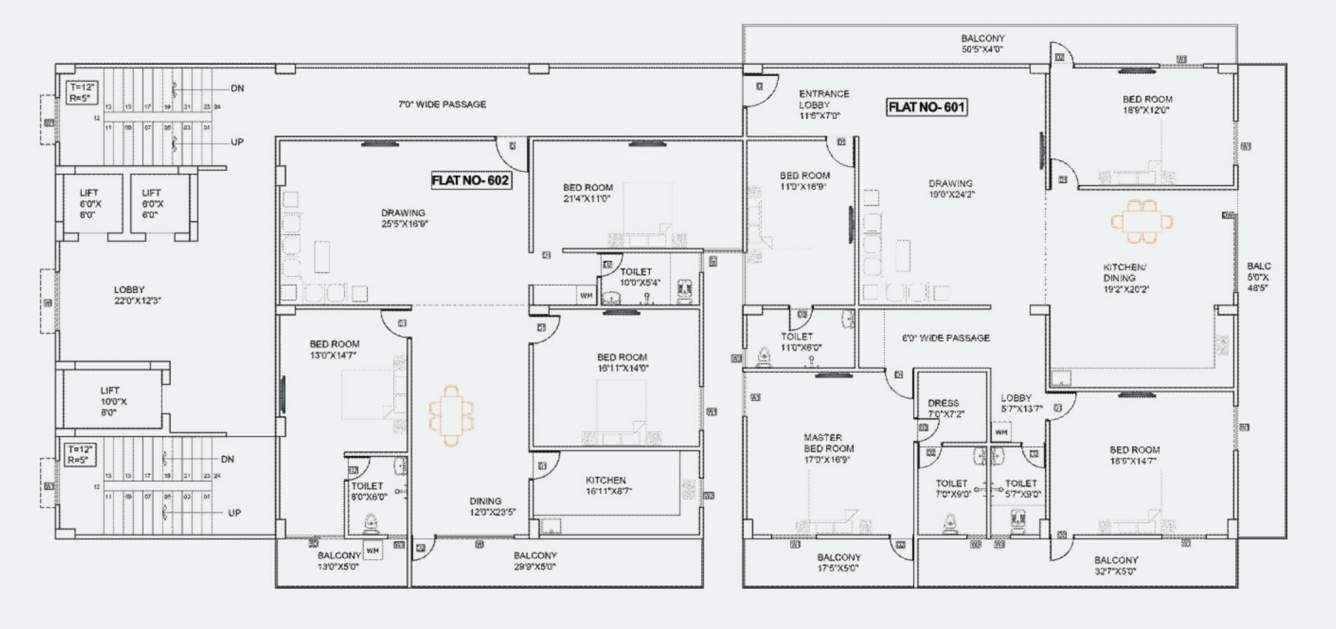
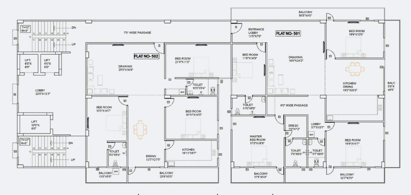
Vantage Reetanjan Floor Plans
- 3 BHK
- 4 BHK
-
-
Vantage Reetanjan Amenities
- Closed Car Parking
Vantage Reetanjan Gallery
Payment Plans

About Vantage Constructions
- Total Projects1
- Ongoing Projects1




















