

Price on request
Builder Price
Configuration
2, 3 BHK
Builtup area
774 - 943 sq ft
Possession Status
Under Construction
Overview
- Possession Start DateMar'29
- StatusUnder Construction
- Total Area0.26 Acres
- Total Launched apartments14
- Launch DateOct'24
- AvailabilityNew
- RERA IDBRERAP182428070325050329E00
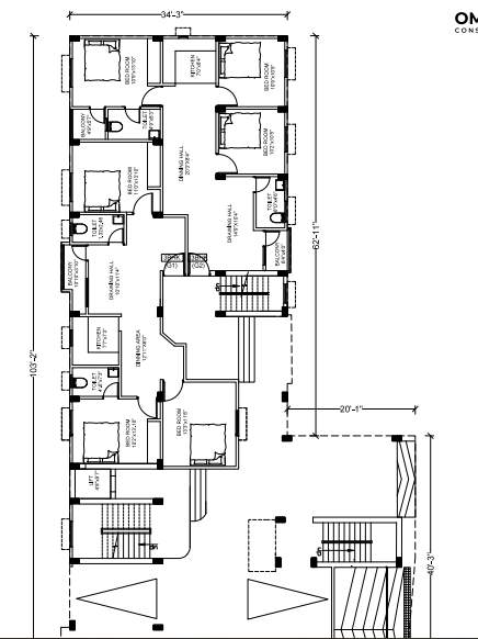
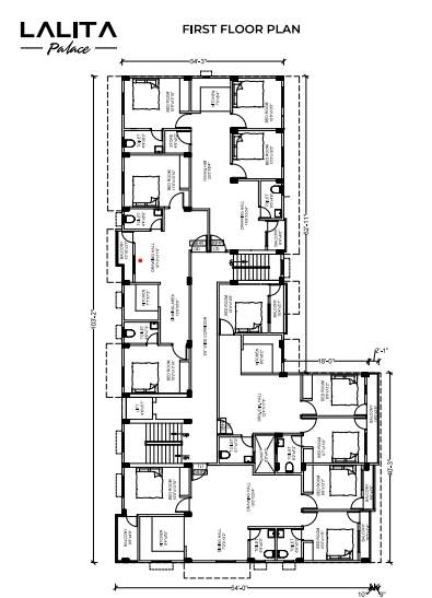
Om Dev Construction Lalita Palace Floor Plans
- 2 BHK
- 3 BHK
-
-
Om Dev Construction Lalita Palace Amenities
- 24X7 Water Supply
- Electrical meter Room
Om Dev Construction Lalita Palace Gallery
About Om Dev Construction
- Total Projects3
- Ongoing Projects1
Om Dev Construction Pvt Ltd started its business to make homes that translates the customer's vision of excellent living into a heavenly reality. The projects of the company are designed with creative coherence by reputed architects and craftsmen. The firm fulfills the client’s desire by providing lavish homes at affordable rates. Their projects are highly praised and are known for their wonderful designs and best space utilization. They are the brilliant gems of real estate coronet and th...
View more



















