

- Possession Start DateSep'15
- StatusCompleted
- Total Area1.22 Acres
- Total Launched apartments91
- Launch DateNov'12
- AvailabilityNew and Resale
- RERA IDBRERAP00330-1/221/R-311/2018.
Salient Features
- 100% Power Backup in Apartment.
- 100% Vaastu Complaint in Apartment.
More about Durga Maple
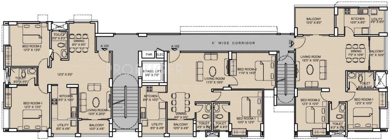
Having an experience of over 15 years in the real estate development industry, Durga Projects is one of the renowned real estate firms. The company has been providing many commercial and residential projects since its inception. Durga Projects has launched Maple, a premium residential project, located in Danapur, Patna. The project features 1, 2 and 3 BHK apartments with sizes ranging from 825 to 1,846 sq. ft. strategically located in Danapur, Maple is close to many landmarks in and around the c...View more
Project Specifications
- 1 BHK
- 2 BHK
- 3 BHK
- Gymnasium
- Swimming Pool
- Children's play area
- Multipurpose Room
- Sports Facility
- Rain Water Harvesting
- Intercom
- 24 X 7 Security
- Jogging Track
- Power Backup
- Indoor Games
- Closed_Car_Parking
- Basketball Court
- Cricket Pitch
- CCTV
- Badminton Court
- Landscaped Gardens
- 24X7 Water Supply
- Gated Community
- Fire Fighting System
- Landscape Garden and Tree Planting
- Vastu Compliant
- Reserved Parking
- Visitor Parking
- Cycling & Jogging Track
- Piped Gas Connection
- Terrace Garden
- Flower Garden
Durga Maple Gallery
Payment Plans

About Durga Projects And Infrastructure

- Years of experience35
- Total Projects10
- Ongoing Projects1
















































