

- Possession Start DateNov'19
- StatusOn Hold
- Total Launched apartments56
- Launch DateJan'14
- AvailabilityNone
More about Virat Aangan
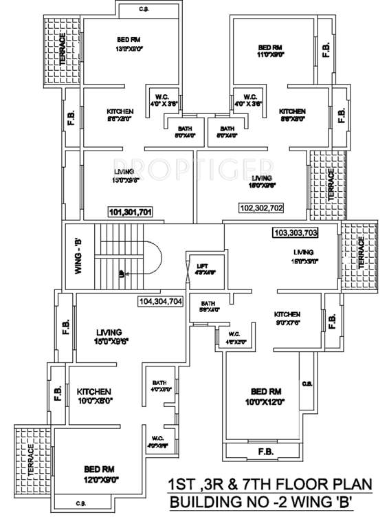
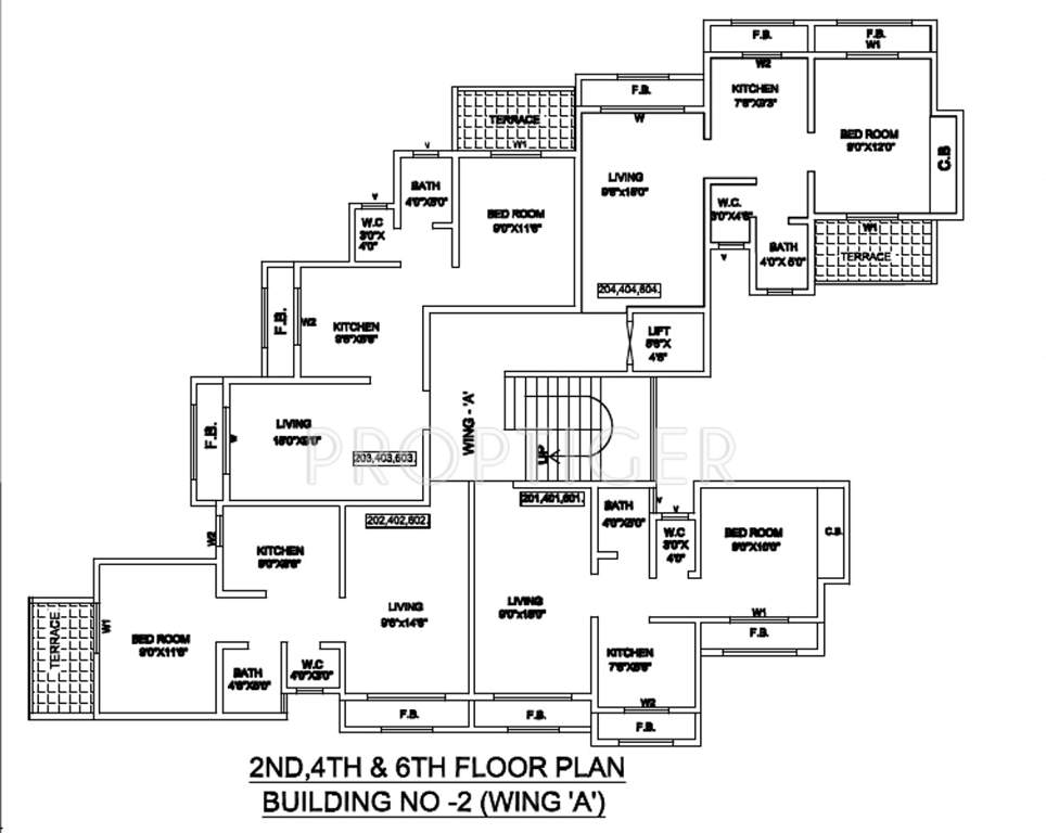
Virat Aangan Mumbai comes with well designed, premium 1 and 2 BHK apartments priced between 20.6 and 29.8 lakhs on an average. The project consists of a total of 65 units while average home sizes range between 605 and 875 sq ft here. Top amenities offered to residents include rainwater harvesting systems, solar water heating provisions, power backup facilities, fire fighting systems, parking facilities and underground tanks.Located at Titwala, the project is well linked to several areas like Gal...View more
Project Specifications
- 1 BHK
- Rain Water Harvesting
- Power Backup
- Fire Fighting System
- Each Wing Separate UG Tank
- Ample Parking Space For Two And Four Wheelers With Separate Space For Both
- Lift Available
- Club House
- 24 X 7 Security
- Gymnasium
- Jogging Track
- Car Parking
- Vaastu Compliant
- Swimming Pool
- Solar Water Heating
Virat Aangan Gallery
About Virat Groups

- Years of experience40
- Total Projects14
- Ongoing Projects1






























