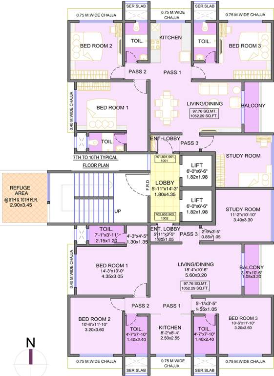
Integrated Ahana is a housing community brought to you in Ghatkopar West, Mumbai. The construction of the community is slated to begin soon. Home buyers have been offered 3BHK flats. The flats are available through the builder mostly. Several amenities have been planned for the community-childrens play area, gymnasium, car parking, jogging tracks, landscaped gardens and intercom services.Integrated Builders is one of the emerging leaders of Mumbais residential property developers. They have work...View more
Integrated Ahana is a housing community brought to you in Ghatkopar West, Mumbai. The construction of the community is slated to begin soon. Home buyers have been offered 3BHK flats. The flats are available through the builder mostly. Several amenities have been planned for the community-childrens play area, gymnasium, car parking, jogging tracks, landscaped gardens and intercom services.Integrated Builders is one of the emerging leaders of Mumbais residential property developers. They have worked on four projects, two of which are underway. Some of them are located in Ghatkopar and Mulund West. Ghatkopar West is a part of Central Mumbai and is bounded by the central railway line and Eastern Express Highway. Several arterial roads connect the locality to different parts of Mumbai-Tilak Road, Mahatma Gandhi Road, LalBahadurShastri Road and Barrister NathPai Road. The Mumbai International Airport is 6.5 kilometres from here. The social infrastructure of the area is quite well developed as it has several educational institutes (Shivaji Technical School), hospitals (Rajawadi Hospital), shopping arcades (R Odeon Mall) and banks. View less
PropTiger.com shall neither be responsible nor liable for any inaccuracy in the information provided here and therefore the customers are requested to independently validate the information from the respective developers before making their decisions related to properties displayed here. PropTiger.com, its directors, employees, agents and other representatives shall not be liable for any action taken, cost / expenses / losses incurred, by you.Read disclaimer
Thank you for your Interest. Would you like to explore similar projects from below?
Thank you for sharing your details!
We regret for currently not serving in Mumbai.
Share Now
There was an error submitting your request. Please try again later.