
12 Photos
Bidker Pawan Landmarks
Price on request
Builder Price
1, 2 BHK
Apartment
675 - 940 sq ft
Builtup area
Project Location
Boisar, Mumbai
Overview
- Jun'14Possession Start Date
- CompletedStatus
- 68Total Launched apartments
- Sep'11Launch Date
- ResaleAvailability
More about Bidker Pawan Landmarks
For the past one and half decade ‘Bidker Builders’ have been trend-setters in providing quality shelters with modern amenities in Vasai. After a strong presence and hundreds of satisfied customers in Vasai and in continuation of the above commitment ‘Bidker Builders’ have moved on to create new LANDMARKS in Boisar which is just, 45 Kms. away from Virar. We intend creating quality apartments Pawan Landmarks at affordable prices to fulfill the common man’s dream by pr...read more
Approved for Home loans from following banks
![HDFC (5244) HDFC (5244)]() 
![Axis Bank Axis Bank]() 
![PNB Housing PNB Housing]() 
![Indiabulls Indiabulls]() 
![Citibank Citibank]() 
![DHFL DHFL]() 
![L&T Housing (DSA_LOSOT) L&T Housing (DSA_LOSOT)]() 
![IIFL IIFL]() 
- + 3 more banksshow less
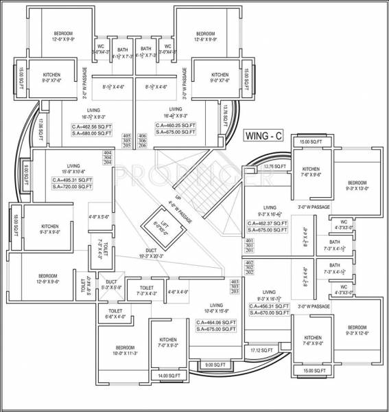
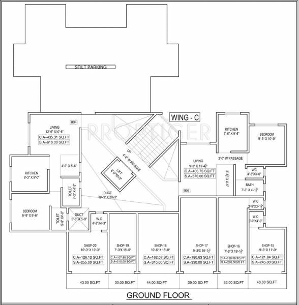
Bidker Pawan Landmarks Floor Plans
- 1 BHK
- 2 BHK
| Floor Plan | Area | Builder Price | 
|---|---|---|
|  | 675 sq ft (1BHK+1T) | - | 
Report Error
Our Picks
- PriceConfigurationPossession
- Current Project![Images for Elevation of Bidker Pawan Landmarks Images for Elevation of Bidker Pawan Landmarks]() Bidker Pawan Landmarksby Bidker BuildersBoisar, MumbaiData Not Available1,2 BHK Apartment675 - 940 sq ftJun '14 Bidker Pawan Landmarksby Bidker BuildersBoisar, MumbaiData Not Available1,2 BHK Apartment675 - 940 sq ftJun '14
- Recommended![residency Elevation Elevation]() Residencyby Radha Krishna RealtyPalghar, Mumbai₹ 18.93 L - ₹ 28.49 L1,2 BHK Apartment362 - 545 sq ftMay '23 Residencyby Radha Krishna RealtyPalghar, Mumbai₹ 18.93 L - ₹ 28.49 L1,2 BHK Apartment362 - 545 sq ftMay '23
- Recommended![virar-avenue-l1-l2-and-l4-wing-g Elevation Elevation]() Virar Avenue L1 L2 And L4 Wing Gby Rustomjee Builders MumbaiVirar, Mumbai₹ 18.93 L - ₹ 28.49 L1,2 BHK Apartment331 - 512 sq ftJan '24 Virar Avenue L1 L2 And L4 Wing Gby Rustomjee Builders MumbaiVirar, Mumbai₹ 18.93 L - ₹ 28.49 L1,2 BHK Apartment331 - 512 sq ftJan '24
Bidker Pawan Landmarks Amenities
- Rain Water Harvesting
Bidker Pawan Landmarks Specifications
Doors
Internal:
Flush Shutters
Flooring
Balcony:
Vitrified Tiles
Kitchen:
Vitrified Tiles
Living/Dining:
Vitrified Tiles
Master Bedroom:
Vitrified Tiles
Other Bedroom:
Vitrified Tiles
Toilets:
Vitrified Tiles
Gallery
- Bidker Pawan LandmarksElevation
- Bidker Pawan LandmarksFloor Plans
- Bidker Pawan LandmarksNeighbourhood
Contact NRI Helpdesk on 
Whatsapp(Chat Only)
Whatsapp(Chat Only)
+91-96939-69347
Contact Helpdesk on 
Whatsapp(Chat Only)
Whatsapp(Chat Only)
+91-96939-69347
About Bidker Builders

- 31 
 Years of Experience
- 3 
 Total Projects
- 0 
 Ongoing Projects
- RERA ID
Similar Projects
- PT ASSIST![residency Elevation  residency Elevation]() Radha Krishna Residencyby Radha Krishna RealtyPalghar, Mumbai₹ 18.93 L - ₹ 28.49 L Radha Krishna Residencyby Radha Krishna RealtyPalghar, Mumbai₹ 18.93 L - ₹ 28.49 L
- PT ASSIST![virar-avenue-l1-l2-and-l4-wing-g Elevation  virar-avenue-l1-l2-and-l4-wing-g Elevation]() Rustomjee Virar Avenue L1 L2 And L4 Wing Gby Rustomjee Builders MumbaiVirar, MumbaiPrice on request Rustomjee Virar Avenue L1 L2 And L4 Wing Gby Rustomjee Builders MumbaiVirar, MumbaiPrice on request
- PT ASSIST![amavi-303 Elevation  amavi-303 Elevation]() Evershine Amavi 303by Evershine BuildersVirar, Mumbai₹ 36.54 L - ₹ 71.46 L Evershine Amavi 303by Evershine BuildersVirar, Mumbai₹ 36.54 L - ₹ 71.46 L
- PT ASSIST![virar-avenue-l1-l2-and-l4-wing-k Elevation  virar-avenue-l1-l2-and-l4-wing-k Elevation]() Rustomjee Virar Avenue L1 L2 And L4 Wing Kby Rustomjee Builders MumbaiVirar, Mumbai₹ 38.55 L - ₹ 58.88 L Rustomjee Virar Avenue L1 L2 And L4 Wing Kby Rustomjee Builders MumbaiVirar, Mumbai₹ 38.55 L - ₹ 58.88 L
- PT ASSIST![Images for Elevation of Rustomjee Virar Avenue L1 L2 And L4 Wing C And D Images for Elevation of Rustomjee Virar Avenue L1 L2 And L4 Wing C And D]() Rustomjee Virar Avenue L1 L2 And L4 Wing C And Dby Rustomjee Builders MumbaiVirar, Mumbai₹ 28.96 L - ₹ 44.80 L Rustomjee Virar Avenue L1 L2 And L4 Wing C And Dby Rustomjee Builders MumbaiVirar, Mumbai₹ 28.96 L - ₹ 44.80 L
Discuss about Bidker Pawan Landmarks
comment
Disclaimer
PropTiger.com is not marketing this real estate project (“Project”) and is not acting on behalf of the developer of this Project. The Project has been displayed for information purposes only. The information displayed here is not provided by the developer and hence shall not be construed as an offer for sale or an advertisement for sale by PropTiger.com or by the developer.
The information and data published herein with respect to this Project are collected from publicly available sources. PropTiger.com does not validate or confirm the veracity of the information or guarantee its authenticity or the compliance of the Project with applicable law in particular the Real Estate (Regulation and Development) Act, 2016 (“Act”). Read Disclaimer
The information and data published herein with respect to this Project are collected from publicly available sources. PropTiger.com does not validate or confirm the veracity of the information or guarantee its authenticity or the compliance of the Project with applicable law in particular the Real Estate (Regulation and Development) Act, 2016 (“Act”). Read Disclaimer

































