

- Possession Start DateFeb'13
- StatusCompleted
- Total Launched apartments19
- Launch DateMar'10
- AvailabilityResale
More about Alhind Rhazes
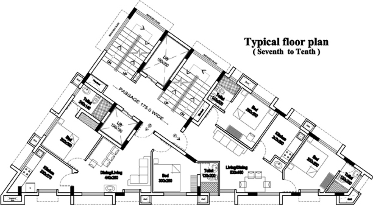
Located in Malaparamba, Kozhikode, Rhazes is a premium housing project launched by Alhind. The project offers Apartment in 2, 3 BHK configurations available from 913 sqft to 1917 sqft. The project is Completed project and possession in Mar 13. Rhazes has many amenities, such as Car Parking, Club House, Paved Compound, Maintenance Staff, Food Court etc.
Project Specifications
- 2 BHK
- 3 BHK
- Gymnasium
- Swimming Pool
- Children's play area
- Club House
- Sports Facility
- Rain Water Harvesting
- Intercom
- 24 X 7 Security
- Power Backup
- Maintenance Staff
- Car Parking
- Shopping Mall
- Fire Fighting System
- Sewage Treatment Plant
- 24X7 Water Supply
- Wi Fi Conectivity
- Lift(S)
- Landscape Garden and Tree Planting
- Paved Compound
- Open Parking
- Restaurant
- Food Court
- Video Door Security
- Vastu Compliant
Alhind Rhazes Gallery
About Alhind

- Total Projects3
- Ongoing Projects0






































