

₹ 17.30 L - ₹ 23.67 L
Builder Price
Home Loan EMI starts at ₹ 13,414See inclusions
Configuration
1, 2 BHK
Builtup area
603 - 828 sq ft
Possession Status
Under Construction
Avg. Price
₹ 2,800 sq.ft
Overview
- Possession Start DateOct'21
- StatusUnder Construction
- Total Launched apartments18
- AvailabilityNew and Resale
Project Specifications
Flooring
Living/Dining:
Vitrified Tiles
Other Bedroom:
Vitrified Tiles
Kitchen:
Vitrified Flooring
Master Bedroom:
Vitrified Flooring
Fittings
Toilets:
CP fittings
Kitchen:
Provision for Water Heater
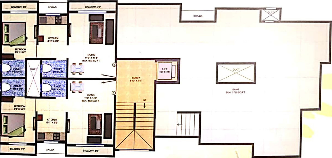
Arya Paradise Floor Plans
- 1 BHK
- 2 BHK
₹ 17.30 L
₹ 21.88 L
Arya Paradise Amenities
- Car Parking
- Fire Fighting System
- Lift(s)
- 24X7 Water Supply
Arya Paradise Gallery
About Arya Group

- Total Projects3
- Ongoing Projects1
















