

- Possession Start DateDec'17
- StatusCompleted
- Total Area1 Acres
- Total Launched apartments50
- Launch DateSep'13
- AvailabilityNew and Resale
Salient Features
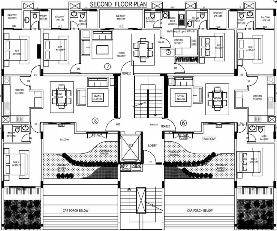
- The Apartment are of the following configurations: 2BHK and 3BHK.
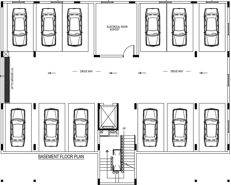
- Asset Versatile offers facilities such as Gymnasium and Lift.It also has amenity like Swimming pool. It also offers Car parking.
More about Asset Versatile
Asset Versatile is a housing complex in Kaloor, Kochi. The construction of the community is underway currently. Which includes amenities such as swimming pool, gymnasium, indoor games room, children play area, round the clock security and intercom services. Asset Homes is a renowned real estate developer of Kochi with twelve projects under its name. Eight of their properties are under construction currently. Aluva and Edapally are two of the neighbourhoods where their projects are situated in. K...View more
Project Specifications
- 2 BHK
- 3 BHK
- Gymnasium
- Swimming Pool
- Children's play area
- Intercom
- 24 X 7 Security
- Indoor Games
- Car Parking
- Internet/Wi-Fi
- Boom Barrier, Automatic Gate
- Sensor & Drip Irrigation
- Health Facilities
- Sewage Treatment Plant
- Jogging Track
- Rain Water Harvesting
- Lift Available
- Driver Room
- Car Wash Zone
- Water Flow Restrictors
- 24 Hours Water Supply
- Club House
- Multipurpose Room
- Power Backup
- Badminton Court
- Amphitheater
- Video Door Security
- Mini Theatre
- Piped Gas Connection
- Landscape Garden and Tree Planting
Asset Versatile Gallery
About Asset

- Total Projects56
- Ongoing Projects13







































































