

Price on request
Builder Price
Configuration
3 BHK
Carpet Area
2,080 sq ft
Possession Status
Launch
Overview
- Possession Start DateOct'22
- StatusLaunch
- Launch DateAug'19
- AvailabilityNew
- RERA IDPR/GJ/JAMNAGAR/JAMNAGAR/Others/MAA06495/211219
More about Chag The Park
Launched by Chag Builder, The Park, is a premium housing project located at Kamdar Colony in Jamnagar. Offering 3 BHK Apartment in Jamnagar Central are available from 0 sqft. This project hosts amenities like Service Lift, Closed Car Parking, Car Parking, Open Car Parking etc. The project is Launch project and possession in Oct 22.
Project Specifications
Flooring
Master Bedroom:
Wodden flooring
Other Bedroom:
Vitrified Tiles
Toilets:
Vitrified Tiles
Kitchen:
Italian Marble
Others
Wiring:
ISI Copper Wiring in PVC Concealed Conduit
Windows:
UPVC Sliding Windows
Switches:
Modular electrical switches
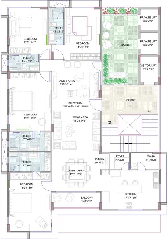
Chag The Park Floor Plans
- 3 BHK
-
Chag The Park Amenities
- Car Parking
- Closed Car Parking
- Open Car Parking
- Service Lift
Chag The Park Gallery
About Chag Builder
- Total Projects1
- Ongoing Projects1












