

- Possession Start DateJan'14
- StatusCompleted
- Total Launched villas1
- Launch DateJun'13
- AvailabilityResale
More about Guman Group Dreams
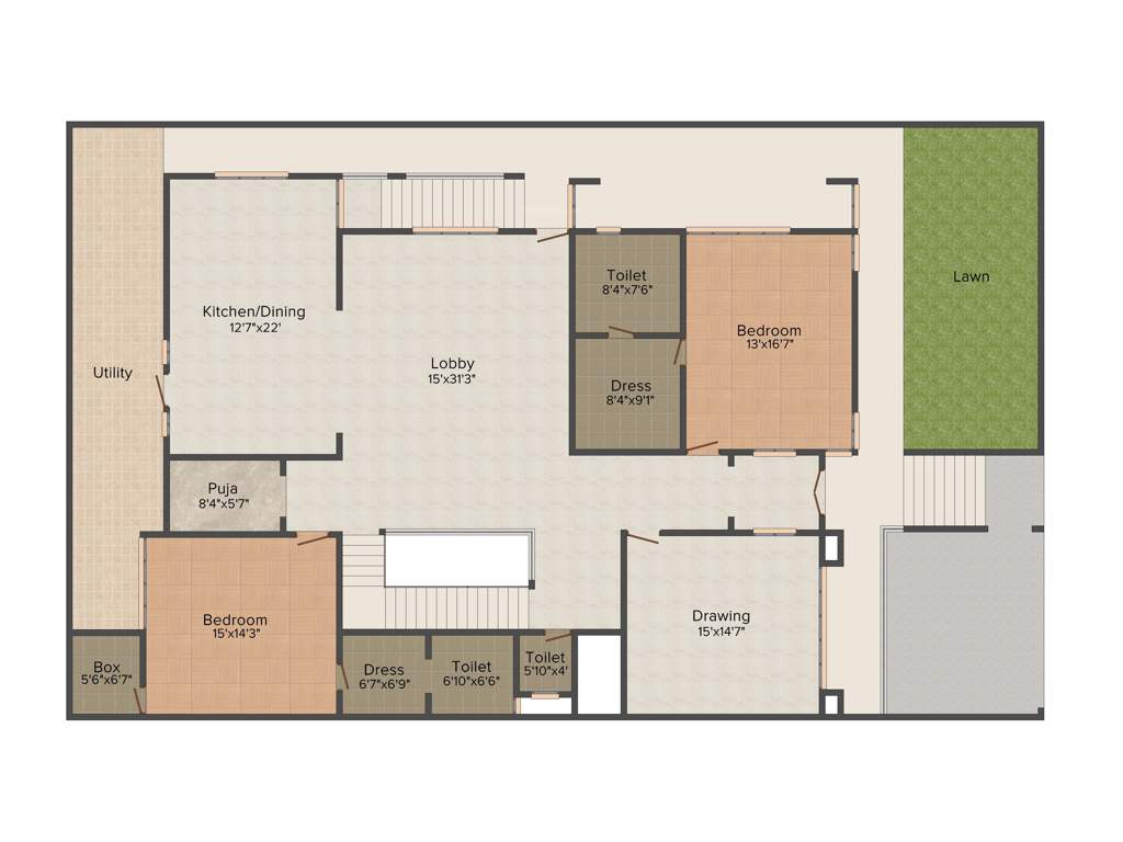
Guman Dreams Jaipur, a residential model of community living, is a residential project developed by Guman Group. It is located at Vaishali Nagar in Jaipur. It offers 1 unit consisting of 6BHK luxury villa with the carpet area of 4000 sq. ft. Since its commencement in 1995, the Guman Group has grown to be a prominent entity in industries like real estate, hospitality, jewellery, furnishing, or consumer durables. Mr ShankarlalKhandelwal has founded this group. Providing quality lifestyle has alway...View more
Project Specifications
- 6 BHK
- Gymnasium
- Swimming Pool
- Children's play area
- Club House
- Rain Water Harvesting
- Intercom
- 24 X 7 Security
- Jogging Track
- Power Backup
- Indoor Games
- Community Hall
- Landscape Garden and Tree Planting
- Jacuzzi
- Mini Theatre
Guman Group Dreams Gallery
About Guman Group

- Years of experience31
- Total Projects7
- Ongoing Projects0


































