

- Possession Start DateJan'19
- StatusUnder Construction
- Total Launched apartments32
- Launch DateFeb'13
- AvailabilityResale
- RERA IDRAJ/P/2017/377
More about Aastha Classique
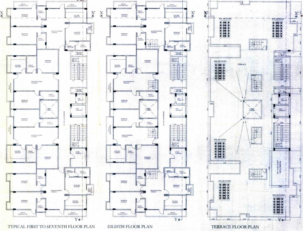
Aastha Group Classique is a housing society in Mansarovar Extension, Jaipur. The complex has 2 and 3BHK flats on offer that are being constructed. The complex is under construction currently and has 32 units available for sale to home buyers. The carpet area covered by the apartments ranges from 1100 to 1700 sq. ft. The flats have been priced between 34.1 and 48 lakhs. Several facilities such as intercom services, rainwater harvesting, club house, swimming pool and gymnasium on offer. The Aastha...View more
Project Specifications
- 2 BHK
- 3 BHK
- Gymnasium
- Swimming Pool
- Club House
- Rain Water Harvesting
- Intercom
- 24 X 7 Security
- Power Backup
- Car Parking
- Private Garden Terrace
- Internet/Wi-Fi
- Community Hall
- Shopping Mall
- Water Disposal
- Lift Available
- 24X7 Water Supply
- Vastu Compliant
- Ro Water System
- Piped Gas Connection
- Storm Water Drains
- Water Storage
- Electrification(Transformer, Solar Energy etc)
Aastha Classique Gallery
Payment Plans


About Aastha Group

- Years of experience26
- Total Projects15
- Ongoing Projects1

















