

- Possession Start DateSep'16
- StatusUnder Construction
- Total Launched apartments34
- AvailabilityNew
- RERA ID.
Salient Features
- Jagatpura Railway Station 4 Km
- Airport Within 3 Km Distance
More about Lotus Red
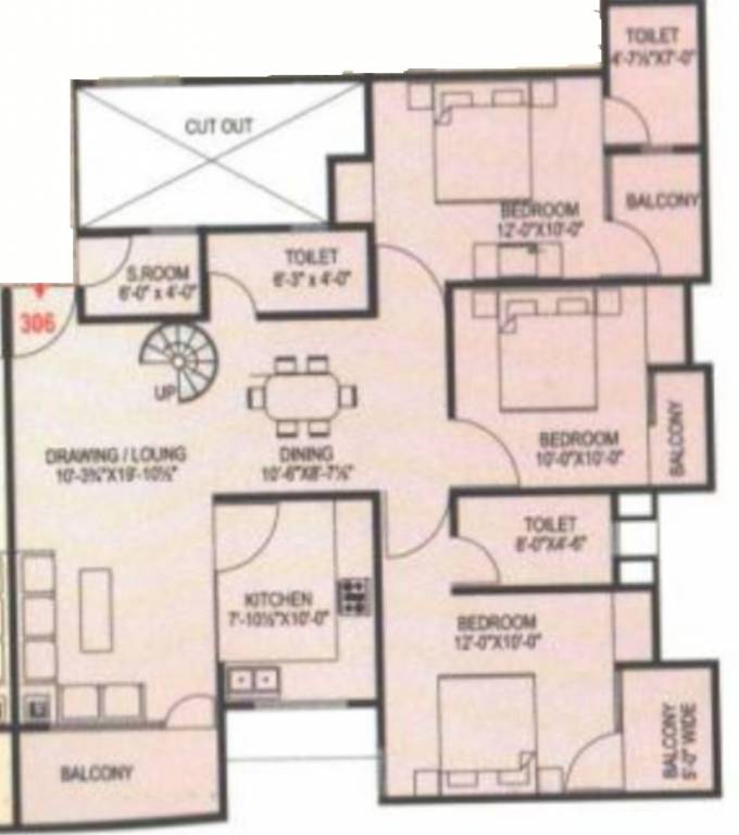
Lotus Red project launched by Lotus Prime Estates offers 2 BHK, 3 BHK, 4 BHK bedroom residences with modern interiors. It is located in Jagatpura Jaipur. The builder has many years of experience in the real estate space. Current status of properties in Lotus Red are Ready to move.. Lotus Red by Lotus Prime Estates offers a total of 34 well-planned and perfectly-designed units. Lifestyle amenities that are included in Lotus Red are Car Parking, Shopping Mall, Intercom, Swimming Pool, Others, Chil...View more
Project Specifications
- 2 BHK
- 3 BHK
- 4 BHK
- Car Parking
- Shopping Mall
- Intercom
- Swimming Pool
- Others
- Children's play area
- Gymnasium
- Club House
- Power Backup
- 24 X 7 Security
- Lift Available
- Indoor Games
- Community Hall
- 24X7 Water Supply
- Library
- Spa/Sauna/Steam
- Health Facilities
- Landscaped Gardens
- Fire Fighting System
- Landscape Garden and Tree Planting
- Fire Sprinklers
Lotus Red Gallery
About Lotus Prime Estates Jaipur

- Total Projects10
- Ongoing Projects1






































