

- Possession Start DateFeb'21
- StatusCompleted
- Total Launched apartments900
- Launch DateJul'09
- AvailabilityNew and Resale
- RERA IDUPRERAPRJ5463
Salient Features
- This Project Provide Comfortable Living
- It Also Has Amenity Like Swimming Pool
- Located on NH-24 Highway.
- Govt. approved integrated township
- Underground parking system and vehicular movement for traffic.
More about Ansal Aquapolis
Aquapolis Project is registered on RERA from the folowing RERA ID – UPRERAPRJ5463 SUSHANT AQUAPOLIS, GROUP HOUSING, PHASE-1 (B2B, D9 UPRERAPRJ5465 SUSHANT AQUAPOLIS, GROUP HOUSING, PHASE-2 (D1, B2A UPRERAPRJ5467 SUSHANT AQUAPOLIS, GROUP HOUSING, PHASE-3 (D2, D3, Ansal Aquapolis, designed around your life, making sure that you enjoy a stress-free living.Surrounded by well established residential areas, shopping malls, hospitals, educational institutions you are in close proximity to all tha...View more
Project Specifications
- 1 BHK
- 2 BHK
- 3 BHK
- 4 BHK
- 5 BHK
- Swimming Pool
- Children's play area
- Intercom
- 24 X 7 Security
- Indoor Games
- Recreation Facilities
- Internet/Wi-Fi
- Power Backup
- Lift Available
- Rain Water Harvesting
- Club House
- Car Parking
- Gymnasium
- Staff Quarter
- Jogging Track
- Vaastu Compliant
- Shopping Mall
- School
- Hospital
- ATM
- Sports Facility
- Maintenance_Staff
- CCTV
- Gated Community
- 24 Hours Water Supply
- Community Hall
- Squash Court
- Tennis Court
- Banquet Hall
- Party Hall
- Service Lift
- Sewage Treatment Plant
- Landscape Garden and Tree Planting
- Water Storage
- Piped Gas Connection
- Salon
- Table Tennis
- Kid's Pool
- Flower Garden
- Garbage Disposal
- Multipurpose Hall
- High Speed Elevators
- Medical Facilities
- Reserved Parking
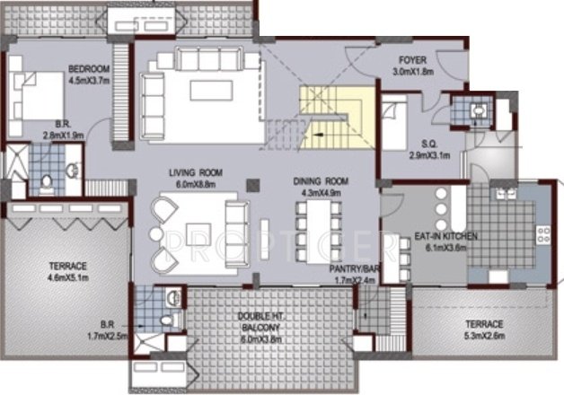
Ansal Aquapolis Gallery
Payment Plans

About Ansal API

- Years of experience59
- Total Projects193
- Ongoing Projects26































































