


- Possession Start DateMar'19
- StatusCompleted
- Total Area1 Acres
- Total Launched apartments76
- Launch DateDec'13
- AvailabilityResale
More about Ganga Aashika Apartments
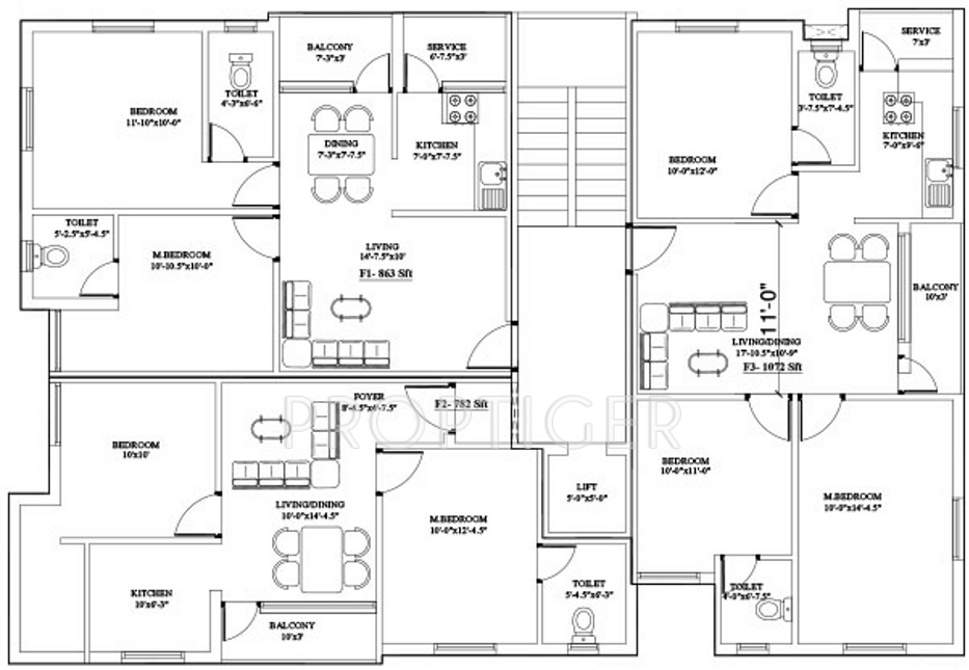
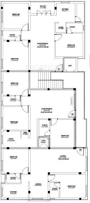
Ganga Foundations has launched Aashika Apartments Chennai, a premium project offering 2 and 3 BHK apartments to buyers. The project comes with several contemporary amenities and other facilities for residents including rainwater harvesting system, guard room, landscaping, water supply provisions, Vastu compliant architectural layouts and a five wire electrical system. Located at Valasaravakkam, the project is well connected to several areas like Arumbakkam, Virugampakkam, Nerkundram and Anna Nag...View more
![HDFC (5244) HDFC (5244)]()
![Axis Bank Axis Bank]()
![PNB Housing PNB Housing]()
![Indiabulls Indiabulls]()
![Citibank Citibank]()
![DHFL DHFL]()
![L&T Housing (DSA_LOSOT) L&T Housing (DSA_LOSOT)]()
![IIFL IIFL]()
- + 3 more banksshow less
Project Specifications
- 2 BHK
- 3 BHK
- Rain Water Harvesting
- Landscaping
- Fire Fighting System
- Car Parking
- Lift Available
- Gated Community
- Water Supply
- Card Room
- Vastu Compliant
Ganga Aashika Apartments Gallery
Payment Plans

About Ganga Chennai

- Years of experience35
- Total Projects22
- Ongoing Projects0

























