
5 Photos
Uma Abhi Palaceby Uma Builders
Price on request
Builder Price
1, 2 BHK
Apartment
566 - 956 sq ft
Builtup area
Project Location
Thirumullaivoyal, Chennai
Overview
- Sep'14Possession Start Date
- CompletedStatus
- 12Total Launched apartments
- Feb'13Launch Date
- ResaleAvailability
More about Uma Abhi Palace
Launched by Uma Builders, Abhi Palace, is a premium housing project located at Thirumullaivoyal in Chennai. Offering 1, 2 BHK Apartment in Chennai West are available from 566 sqft to 956 sqft. This project hosts amenities like Intercom Facility, Rain Water Harvesting, Fire Fighting System etc. The project is Completed project and possession in Oct 14.
Approved for Home loans from following banks
![HDFC (5244) HDFC (5244)]()
![Axis Bank Axis Bank]()
![PNB Housing PNB Housing]()
![Indiabulls Indiabulls]()
![Citibank Citibank]()
![DHFL DHFL]()
![L&T Housing (DSA_LOSOT) L&T Housing (DSA_LOSOT)]()
![IIFL IIFL]()
- + 3 more banksshow less
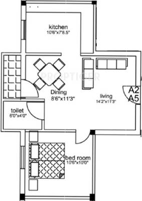
Uma Abhi Palace Floor Plans
- 1 BHK
- 2 BHK
| Floor Plan | Area | Builder Price |
|---|---|---|
![]() | 566 sq ft (1BHK+1T) | - |
Report Error
Our Picks
- PriceConfigurationPossession
- Current Project
Uma Abhi Palaceby Uma BuildersThirumullaivoyal, ChennaiData Not Available1,2 BHK Apartment566 - 956 sq ftSep '14 - Recommended
Urbaniaby DRA Homes ChennaiAvadi, Chennai₹ 42.22 L - ₹ 1.00 Cr2,3 BHK Apartment763 - 1,349 sq ftJul '25 - Recommended
Happinestby Mahindra LifespaceAvadi, Chennai₹ 19.52 L - ₹ 31.93 L1,2 BHK Apartment291 - 1,066 sq ftDec '22
Uma Abhi Palace Amenities
- Rain Water Harvesting
- Fire Fighting System
- Intercom Facility
Uma Abhi Palace Specifications
Doors
Main:
Teak Wood Frame
Flooring
Kitchen:
Vitrified Tiles
Living/Dining:
Vitrified Tiles
Master Bedroom:
Vitrified Tiles
Other Bedroom:
Vitrified Tiles
Toilets:
Anti Skid Tiles
Gallery
Uma Abhi PalaceElevation
Uma Abhi PalaceFloor Plans
Uma Abhi PalaceNeighbourhood
Contact NRI Helpdesk on
Whatsapp(Chat Only)
Whatsapp(Chat Only)
+91-96939-69347
Contact Helpdesk on
Whatsapp(Chat Only)
Whatsapp(Chat Only)
+91-96939-69347
About Uma Builders

- 21
Years of Experience - 10
Total Projects - 0
Ongoing Projects - RERA ID
An Engineering Graduate with Post Graduation in Management Studies, after having been employed with TVS and Shasun Chemicals for a Combined Span of 10 years had a dream of building a professionally managed organisation and this gave birth to UMA Builders. His main responsibility is to steer the company forward by innovative Business development methods & ensure growth of the company by effective overall management duties. M.KANNAN B.E- Operations Director A Civil Engineering graduate having ... read more
Similar Projects
- PT ASSIST
DRA Urbaniaby DRA Homes ChennaiAvadi, Chennai₹ 42.22 L - ₹ 74.65 L - PT ASSIST
Mahindra Happinestby Mahindra LifespaceAvadi, Chennai₹ 17.57 L - ₹ 31.93 L - PT ASSIST
VGN Horizonby VGN Projects EstatesAvadi, Chennai₹ 26.10 L - ₹ 1.26 Cr - PT ASSIST
VGN Spring Field Phase IIby VGN Projects EstatesAvadi, ChennaiPrice on request - PT ASSIST
Newry Alturaby Newry PropertiesAvadi, Chennai₹ 71.50 L - ₹ 81.81 L
Discuss about Uma Abhi Palace
comment
Disclaimer
PropTiger.com is not marketing this real estate project (“Project”) and is not acting on behalf of the developer of this Project. The Project has been displayed for information purposes only. The information displayed here is not provided by the developer and hence shall not be construed as an offer for sale or an advertisement for sale by PropTiger.com or by the developer.
The information and data published herein with respect to this Project are collected from publicly available sources. PropTiger.com does not validate or confirm the veracity of the information or guarantee its authenticity or the compliance of the Project with applicable law in particular the Real Estate (Regulation and Development) Act, 2016 (“Act”). Read Disclaimer
The information and data published herein with respect to this Project are collected from publicly available sources. PropTiger.com does not validate or confirm the veracity of the information or guarantee its authenticity or the compliance of the Project with applicable law in particular the Real Estate (Regulation and Development) Act, 2016 (“Act”). Read Disclaimer



























