

- Possession Start DateSep'14
- StatusCompleted
- Total Launched apartments4
- Launch DateSep'13
- AvailabilityResale
More about Sree Aishwarya
These homes are exclusive. From the stage of blue print to the completion of the project our endeavour has been to make these homes unique and outstanding. From selection of the location to the alluring architecture, attractive façades to the innovative designing to even the most trivial details exclusivity has been the word that finds expression all through the project. Set amidst expansive greenery, these homes provide much needed respite to the tired mind and body. You are always in in...View more
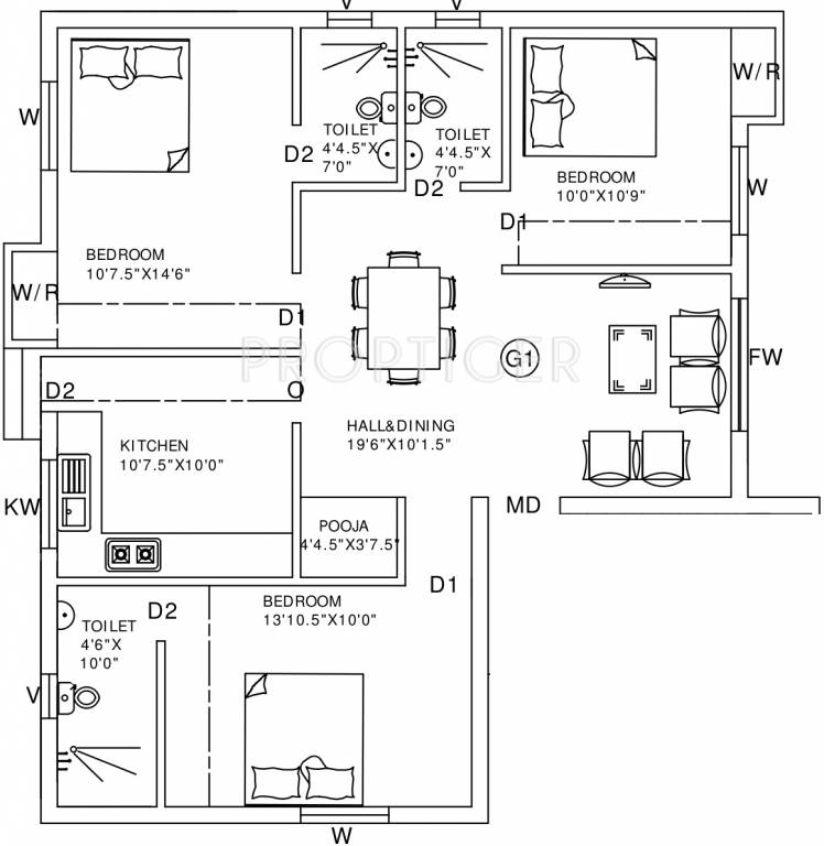
Project Specifications
- 2 BHK
- 3 BHK
- Gymnasium
- Golf Course
- Multipurpose Room
- Sports Facility
- Rain Water Harvesting
- Intercom
- Indoor Games
- Maintenance Staff
- Landscape Garden and Tree Planting
Sree Aishwarya Gallery
Payment Plans

About Sree Guru Foundations

- Years of experience23
- Total Projects30
- Ongoing Projects4
























