

- Possession Start DateFeb'14
- StatusCompleted
- Total Launched apartments5
- Launch DateDec'12
- AvailabilityResale
More about Sri Suprabhatham Tngo Colony
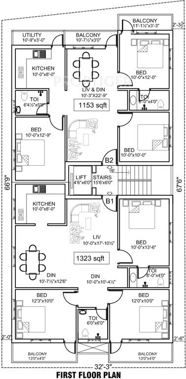
Sri Suprabhatam Builders Tngo Colony is a residential complex located at Nanganallur, Chennai. The project offers its residents well designed and spacious ‘ready to move in’ apartments to choose from. The project is located in a convenient neighbourhood containing banks, ATMs, parks, petrol pumps, schools, hospitals, play schools, restaurants, office complex, metro station, train stations and bus stations. Nanganallur, also called Little Kanchi or Chinna Kanchipuram is one of the mo...View more
![HDFC (5244) HDFC (5244)]()
![Axis Bank Axis Bank]()
![PNB Housing PNB Housing]()
![Indiabulls Indiabulls]()
![Citibank Citibank]()
![DHFL DHFL]()
![L&T Housing (DSA_LOSOT) L&T Housing (DSA_LOSOT)]()
![IIFL IIFL]()
- + 3 more banksshow less
Project Specifications
- 2 BHK
- 3 BHK
- Water Storage
Sri Suprabhatham Tngo Colony Gallery

About Sri Suprabhatham Builders

- Years of experience25
- Total Projects17
- Ongoing Projects0































