India's best property portal to buy property in India - Proptiger.com
Possession : Nov'25
Rera
Rohaan Phoenix
Price on request
Builder Price
Configuration
2, 3 BHK
Builtup area1 sq M = 10.76 sq ft
1,024 - 1,197 sq ft
Possession Status
Under Construction
Overview
  • Possession Start Date
    Nov'25
  • Status
    Under Construction
  • Total Launched apartments
    12
  • Launch Date
    Apr'23
  • Availability
    Resale
  • RERA ID
    TN/01/Building/0146/2023

Project Specifications

Walls
Exterior:
Emulsion Paint
Interior:
Plaster & OBD
Kitchen:
Glazed Tiles Dado up to Lintel Level
Toilets:
Glazed Tiles Dado up to Lintel Level
Fittings
Kitchen:
Dishwasher
Toilets:
CP fittings
Others
Windows:
UPVC / Aluminium Windows
Frame Structure:
Seismic Zone II Complaint RCC Framed Structure
Wiring:
Concealed copper wiring
Switches:
Modular switches
Flooring
Balcony:
Anti skid ceramic tiles
Toilets:
Anti Skid Ceramic Tiles
Living/Dining:
Vitrified Tiles
Master Bedroom:
Vitrified Tiles
Other Bedroom:
Vitrified Tiles
Kitchen:
Vitrified Tiles
Doors
Internal:
Veneer Flush Doors
Main:
Veneer Flush Doors
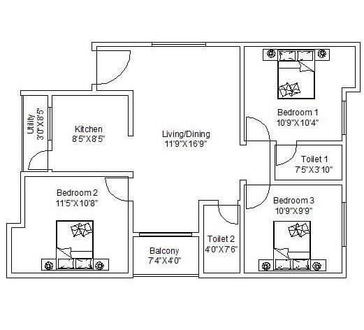
Rohaan Phoenix Floor Plans
  • 2 BHK
  • 3 BHK
-
-
Rohaan Phoenix Amenities

About Rohaan Constructions

Rohaan Constructions
  • Years of experience19
  • Total Projects23
  • Ongoing Projects2
Rohaan Constructions is a leading real estate entity that is synonymous with sustainability and design excellence. The group focuses on delivering value at every stage to the customers. Rohaan Constructions is synonymous with value optimisation and best practices in the industry. The portfolio of property by Rohaan Constructions includes multiple residential projects in and around Chennai. Unique Selling Point The company is always focused on surpassing customer expectations. The company develop...
View more

More projects by Rohaan Constructions

Similar Projects

Developer Network

  • 400+
    Reputed Developers