

- Possession Start DateFeb'14
- StatusCompleted
- Total Launched apartments6
- Launch DateApr'13
- AvailabilityResale
More about HPK Star Ellora
Ellora is a housing project launched by HPK Star Property Developer. Located at Madhavaram in Chennai, it offers 2 and 3 BHK apartments. It is only available from the developer. Situated in the northern suburb of Chennai, Madhavaram houses some of the oldest and most famous temples of the city. The Guntur-Chennai Highway, 100 Feet Road and Madhavaram Red Hills Road are the prime roads that contribute to smooth connectivity. MTC buses and Chennai Suburban Trains are hugely popular in this area. S...View more
![HDFC (5244) HDFC (5244)]()
![Axis Bank Axis Bank]()
![PNB Housing PNB Housing]()
![Indiabulls Indiabulls]()
![Citibank Citibank]()
![DHFL DHFL]()
![L&T Housing (DSA_LOSOT) L&T Housing (DSA_LOSOT)]()
![IIFL IIFL]()
- + 3 more banksshow less
- 2 BHK
- 3 BHK
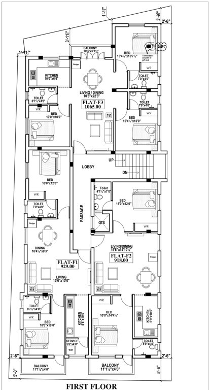
HPK Star Ellora Gallery
About HPK Star Property Developer

- Total Projects3
- Ongoing Projects0

































