

- Possession Start DateJan'14
- StatusCompleted
- Total Launched apartments5
- Launch DateNov'12
- AvailabilityResale
More about CC Builders Sachin Enclave
Sachin Enclave by CC Builders, located in Kotturpuram, Chennai, offers apartments with the price being on request. It provides amenities such as rainwater harvesting, intercom, 24x7 security, and power backup. Situated in south Chennai, Kotturpuram is well-known for prominent landmarks such as IIT Chennai, Anna Centenary Library, Anna University, Kotturpuram Nandanam Bridge and Birla Planetarium. The key builders include Firm Foundations, Sree Foundations, CC Builders, Appaswamy and Kgeyes Resid...View more
![HDFC (5244) HDFC (5244)]()
![LIC LIC]()
![Axis Bank Axis Bank]()
![PNB Housing PNB Housing]()
![IDBI Bank IDBI Bank]()
![Corporation Bank Corporation Bank]()
![Indiabulls Indiabulls]()
![Citibank Citibank]()
![DHFL DHFL]()
![L&T Housing (DSA_LOSOT) L&T Housing (DSA_LOSOT)]()
![IIFL IIFL]()
- + 6 more banksshow less
Project Specifications
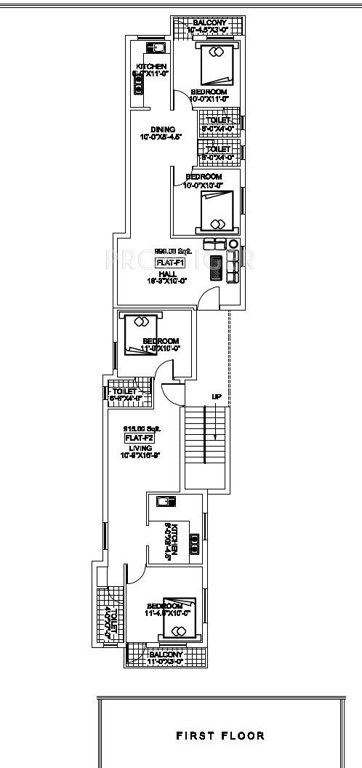
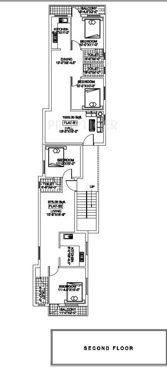
- 2 BHK
- Rain Water Harvesting
- Intercom
- 24 X 7 Security
- Power Backup
CC Builders Sachin Enclave Gallery
About CC Builders

- Total Projects73
- Ongoing Projects0




































