

- Possession Start DateJan'11
- StatusCompleted
- Total Launched apartments6
- AvailabilityResale
More about Golden Villa
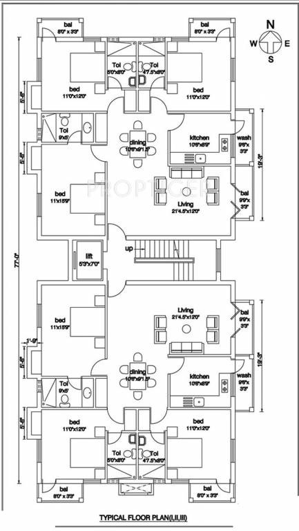
Golden Homes Golden Villa Chennai comes with 3 BHK apartments for buyers that are sized at 1350 sq ft each. The project consists of 6 units and offers several amenities and facilities to residents. Located at Kilpaukkam, the project lies in close proximity to several areas including Ethiraj Gardens, TNHB Colony, Periamet, Otteri, Choolai, Pattalam and Egmore among others. Areas like Anna Nagar, Ayanavaram, Aminjikarai, Perambur and Gopalapuram are also well connected to the project. The Poonamal...View more
![HDFC (5244) HDFC (5244)]()
![Axis Bank Axis Bank]()
![PNB Housing PNB Housing]()
![Indiabulls Indiabulls]()
![Citibank Citibank]()
![DHFL DHFL]()
![L&T Housing (DSA_LOSOT) L&T Housing (DSA_LOSOT)]()
![IIFL IIFL]()
- + 3 more banksshow less
Project Specifications
- 3 BHK
Golden Villa Gallery
About Golden Homes

- Years of experience41
- Total Projects46
- Ongoing Projects1

























