

- Possession Start DateJun'13
- StatusCompleted
- Total Launched apartments6
- Launch DateSep'12
- AvailabilityResale
Salient Features
- Some of the amenities are rainwater harvesting
- Accessibility to key landmarks
- Conviniently located near schools, hospitals, restaurants, banks
More about CC Builders Annai Illam
Annai Illam, a residential concept of community living, is a widely spread residential project by the CC Builders.CC Builders is India's premier real estate and infrastructure development company. Annai Illam is located at Rajeshwari Street,Somu Nagar, East Tambaram, Chennai offering a blessed nature friendly lifestyle in the heart of the City.CC Builders Annai Illam is offering a beautiful lifestyle in 1BHK, 2BHK,3BHK with a herd of amenities such as Central Greens, Clubhouse, Swimming Pool, Gr...View more
Project Specifications
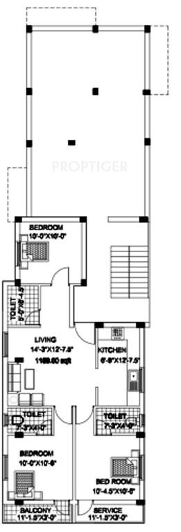
- 1 BHK
- 2 BHK
- 3 BHK
- Rain Water Harvesting System
CC Builders Annai Illam Gallery
About CC Builders

- Total Projects73
- Ongoing Projects0






























