

- Possession Start DateFeb'16
- StatusCompleted
- Total Launched apartments10
- Launch DateDec'14
- AvailabilityResale
Salient Features
- Rainwater harvesting to impart quality lifestyle
- Accessibility to key landmarks
- Accessible to schools, banks
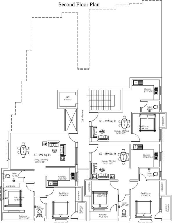
More about ASV Podhigai Apartments Phase II
Chromepet is one of the busy circles in Chennai. ASV Lifespace Podhigai Apartments Phase II group of realtors is offering premium apartments in their project. The price of the apartments is based on the request value. These apartments are all set for possession. All the required infrastructure like bank & ATM branches, hospital, bus stop, school, petrol pump, restaurant, etc. are available in the neighbourhood. Amenities under the project include a gymnasium, a clubhouse, a children’s ...View more
![HDFC (5244) HDFC (5244)]()
![Axis Bank Axis Bank]()
![PNB Housing PNB Housing]()
![Indiabulls Indiabulls]()
![Citibank Citibank]()
![DHFL DHFL]()
![L&T Housing (DSA_LOSOT) L&T Housing (DSA_LOSOT)]()
![IIFL IIFL]()
- + 3 more banksshow less
- 1 BHK
- 2 BHK
- Car Parking
- Lift Available
- Rain Water Harvesting
- Power Backup
- Vaastu Compliant
ASV Podhigai Apartments Phase II Gallery
About ASV Lifespace

- Years of experience28
- Total Projects7
- Ongoing Projects1







































