

- Possession Start DateJul'13
- StatusCompleted
- Total Launched apartments6
- Launch DateDec'12
- AvailabilityResale
Salient Features
- Loaded with amenities like rainwater harvesting
- Accessibility to key landmarks
- Stratigically located medical facilities
More about EGB Hamsa
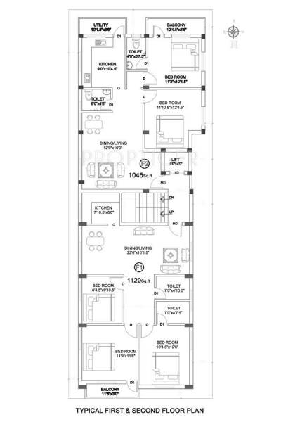
Hamsa by EGB Builders, located in Arumbakkam, Chennai, offers 2 and 3 BHK apartments with the price being on request. There are 6 apartments in total, and their sizes range from 1045 to 1120 sq ft. One of the most comfortable areas in Chennai, Arumbakkam boasts of some great apartments for sale, provided by real estate builders such as Arihant Housing, Ashvar, Authentic Builders, BSR, EGB Builders, Nivedha, Oyester Homes, and SRM Builders etc. The built-up areas of the residential projects in th...View more
Project Specifications
- 2 BHK
- 3 BHK
- Closed Car Parking
- Sewage Treatment Plant
- RO Plant
- Power Backup
- Lift Available
- Rain Water Harvesting
- Club House
- Swimming Pool
- 24 X 7 Security
- Car Parking
- Gymnasium
- Staff Quarter
- Jogging Track
- Vaastu Compliant
- Sensor Operated Doors And Lifts
- Wall Climbing
- Petrol Pump
EGB Hamsa Gallery
About EGB Builders

- Total Projects15
- Ongoing Projects0





















