

- Possession Start DateFeb'16
- StatusCompleted
- Total Launched apartments7
- Launch DateNov'13
- AvailabilityResale
Salient Features
- Good investment opportunity
- Spacious properties, skillfully designed residencies
- 16 km to chennai airport
- 8 km to chennai central railway station
More about Adroit Sirius
Adroit Urban Sirius is an under construction residential project in Chennai’s business district, Thiyagaraya Nagar. There are various facilities on offer such as gymnasium, intercom connectivity, rainwater harvesting, children play area and jogging track. Adroirt Developers was founded in 1972. They have eight properties to their name, five of which are under construction. Sholinganallur and Navallur are two areas where their projects are based. Thiyagaraya Nagar or T Nagar is close to are...View more
Project Specifications
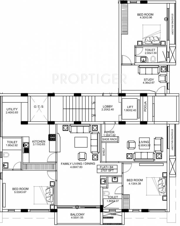
- 3 BHK
- 4 BHK
- Gymnasium
- Children's play area
- Rain Water Harvesting
- Intercom
- 24 X 7 Security
- Jogging Track
- Power Backup
- Community Hall
- Lift_Available
- Closed_Car_Parking
- Vaastu_Compliant
- Full Power Backup
- Landscape Garden and Tree Planting
- Multipurpose Hall
- Video Door Security
- Paved Compound
Adroit Sirius Gallery
Payment Plans

About Adroit Urban Developers

- Years of experience55
- Total Projects15
- Ongoing Projects1






















































