
37 Photos
PROJECT RERA ID : Rera Not Applicable
2602 sq ft 3 BHK 3T Villa in ZED Earthby ZED Builder
Price on request
Project Location
Doddaballapur, Bangalore
Basic Details
Amenities38
Specifications
Property Specifications
- CompletedStatus
- May'18Possession Start Date
- 2602 sq ftSize
- 25 AcresTotal Area
- 139Total Launched villas
- Nov'10Launch Date
- ResaleAvailability
Salient Features
- Columbia Hospital is Nearby
- Properties with 100% power backup available
- Well connected to all modes of transportation
ZED Earth is a housing community located in Doddaballapur, Bangalore. Fully constructed, it offers 218 units of 3 and 4 BHK villas. Amenities like gymnasium, pool, golf course and open air theatre are offered. ZED is a pioneer in the field of real estate development. Doddaballapur is situated on the Bangalore-Hindupur State Highway. It has a distance of 52.2 kilometers from HAL Bangalore International Airport. The area abounds in many good schools (M.S.V. Public School), hospitals (Ashwini Hospi...more
Approved for Home loans from following banks
Payment Plans

Price & Floorplan
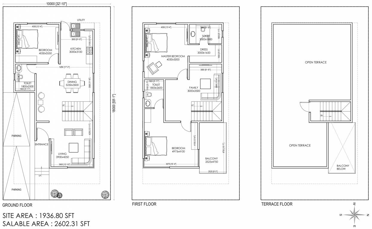
3BHK+3T (2,602 sq ft)
Price On Request

2D
- 3 Bathrooms
- 1 Balcony
- 3 Bedrooms
Report Error
Gallery
ZED EarthElevation
ZED EarthVideos
ZED EarthAmenities
ZED EarthFloor Plans
ZED EarthNeighbourhood
ZED EarthOthers
Other properties in ZED Builder Earth
- 3 BHK
- 4 BHK
Contact NRI Helpdesk on
Whatsapp(Chat Only)
Whatsapp(Chat Only)
+91-96939-69347
Contact Helpdesk on
Whatsapp(Chat Only)
Whatsapp(Chat Only)
+91-96939-69347
About ZED Builder

- 28
Years of Experience - 11
Total Projects - 1
Ongoing Projects - RERA ID
An OverviewZED is a real estate development company in South India. Established as BCIL in 1995, the group has built over 2,000 homes in Bengaluru, Coorg and Chennai. The portfolio of property by ZED includes residential projects. Unique Selling PointThe company believes in delivering quality and luxury at affordable prices. Customer satisfaction and timely delivery of project are other USPs of the group. A project by the company, ZEDEarth is a recipient of the highest rating award by GRIHA, a g... read more
Similar Properties
- PT ASSIST
Blue 3BHK+3T (2,700 sq ft)by Blue ValleyDoddaballapur, BangalorePrice on request - PT ASSIST
Century 3BHK+4T (2,782 sq ft) Servant Roomby Century Real EstateYelahanka, DoddaballapurPrice on request - PT ASSIST
Blue 3BHK+3T (2,693 sq ft)by Blue ValleyDoddaballapur Road,BangalorePrice on request - PT ASSIST
Blue 4BHK+4T (2,800 sq ft)by Blue ValleyDoddaballapur Road,BangalorePrice on request - PT ASSIST
Prestige 3BHK+3T (2,403 sq ft)by Prestige GroupYelahanka, DoddaballapurPrice on request
Discuss about ZED Earth
comment
Disclaimer
PropTiger.com is not marketing this real estate project (“Project”) and is not acting on behalf of the developer of this Project. The Project has been displayed for information purposes only. The information displayed here is not provided by the developer and hence shall not be construed as an offer for sale or an advertisement for sale by PropTiger.com or by the developer.
The information and data published herein with respect to this Project are collected from publicly available sources. PropTiger.com does not validate or confirm the veracity of the information or guarantee its authenticity or the compliance of the Project with applicable law in particular the Real Estate (Regulation and Development) Act, 2016 (“Act”). Read Disclaimer
The information and data published herein with respect to this Project are collected from publicly available sources. PropTiger.com does not validate or confirm the veracity of the information or guarantee its authenticity or the compliance of the Project with applicable law in particular the Real Estate (Regulation and Development) Act, 2016 (“Act”). Read Disclaimer

















































