
29 Photos
PROJECT RERA ID : Rera Not Applicable
Kumar Princetown Royaleby Kumar Corp

Price on request
Builder Price
3 BHK
Apartment
1,138 - 1,272 sq ft
Carpet Area
Project Location
Jalahalli, Bangalore
Overview
- Jun'17Possession Start Date
- CompletedStatus
- 1 AcresTotal Area
- 76Total Launched apartments
- Oct'14Launch Date
- ResaleAvailability
Salient Features
- Jalahalli metro station only 2 mins away.
- KSRTC bus stand only 2 mins away.
- NICE road only 5 mins away.
- Outer ring road only 5 mins away.
More about Kumar Princetown Royale
Kumar Princetown Royale is located in Bangalore Jalahalli. The residential community offers home buyers 3BHK apartments to choose from, which are under construction currently. A total of 76 units are offered in the community. The apartments are available directly from the builders. Residents can expect to enjoy sixteen amenities within the community which include jogging track, intercom services, children’s play area, swimming pool and gymnasium.Established in August 1966, Kumar Properties...read more
Approved for Home loans from following banks
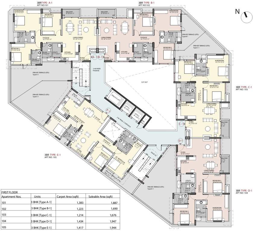
Kumar Princetown Royale Floor Plans
- 3 BHK
| Floor Plan | Carpet Area | Builder Price |
|---|---|---|
![]() | 1138 sq ft (3BHK+2T) | - |
![]() | 1161 sq ft (3BHK+2T) | - |
![]() | 1231 sq ft (3BHK+3T) | - |
![]() | 1272 sq ft (3BHK+3T) | - |
1 more size(s)less size(s)
Report Error
Our Picks
- PriceConfigurationPossession
- Current Project
Kumar Princetown Royaleby Kumar CorpJalahalli, BangaloreData Not Available3 BHK Apartment1,138 - 1,272 sq ftJun '17 - Recommended
The Poemby Shriram PropertiesYeshwantpur, Bangalore₹ 77.79 L - ₹ 1.03 Cr2,3 BHK Apartment949 - 1,255 sq ftFeb '28 - Recommended
Codename Treasure Islandby Shriram PropertiesJalahalli, Bangalore₹ 77.79 L - ₹ 1.03 Cr2 BHK Apartment1,305 - 1,345 sq ftMar '22
Kumar Princetown Royale Amenities
- Gymnasium
- Swimming Pool
- Children's play area
- Club House
- Intercom
- Jogging Track
- Power Backup
- Car Parking
Kumar Princetown Royale Specifications
Doors
Internal:
Laminated Flush Door
Main:
Teak Wood Frame and Shutter
Flooring
Balcony:
Anti Skid Tiles
Kitchen:
Vitrified Tiles
Living/Dining:
Vitrified Tiles
Master Bedroom:
Vitrified Tiles
Other Bedroom:
Vitrified Tiles
Toilets:
Anti Skid Tiles
Gallery
Kumar Princetown RoyaleElevation
Kumar Princetown RoyaleVideos
Kumar Princetown RoyaleAmenities
Kumar Princetown RoyaleFloor Plans
Kumar Princetown RoyaleNeighbourhood
Payment Plans

Contact NRI Helpdesk on
Whatsapp(Chat Only)
Whatsapp(Chat Only)
+91-96939-69347
Contact Helpdesk on
Whatsapp(Chat Only)
Whatsapp(Chat Only)
+91-96939-69347
About Kumar Corp

- 35
Total Projects - 12
Ongoing Projects - RERA ID
Similar Projects
- PT ASSIST
The Poemby Shriram PropertiesYeshwantpur, Bangalore₹ 77.79 L - ₹ 1.03 Cr - PT ASSIST
Shriram Codename Treasure Islandby Shriram PropertiesJalahalli, BangalorePrice on request - PT ASSIST
Vaishnavi Gardeniaby Vaishnavi Group BangaloreDasarahalli on Tumkur Road, BangalorePrice on request - PT ASSIST
Sattva Opusby Sattva Group BangaloreDasarahalli on Tumkur Road, BangalorePrice on request - PT ASSIST
Pride Altiusby Pride Housing BangaloreYeshwantpur, BangalorePrice on request
Discuss about Kumar Princetown Royale
comment
Disclaimer
PropTiger.com is not marketing this real estate project (“Project”) and is not acting on behalf of the developer of this Project. The Project has been displayed for information purposes only. The information displayed here is not provided by the developer and hence shall not be construed as an offer for sale or an advertisement for sale by PropTiger.com or by the developer.
The information and data published herein with respect to this Project are collected from publicly available sources. PropTiger.com does not validate or confirm the veracity of the information or guarantee its authenticity or the compliance of the Project with applicable law in particular the Real Estate (Regulation and Development) Act, 2016 (“Act”). Read Disclaimer
The information and data published herein with respect to this Project are collected from publicly available sources. PropTiger.com does not validate or confirm the veracity of the information or guarantee its authenticity or the compliance of the Project with applicable law in particular the Real Estate (Regulation and Development) Act, 2016 (“Act”). Read Disclaimer










































