

- Possession Start DateOct'12
- StatusCompleted
- Total Area25 Acres
- Total Launched villas139
- Launch DateNov'10
- AvailabilityResale
Salient Features
- Columbia Hospital is Nearby
- Properties with 100% power backup available
- Well connected to all modes of transportation
More about ZED Earth
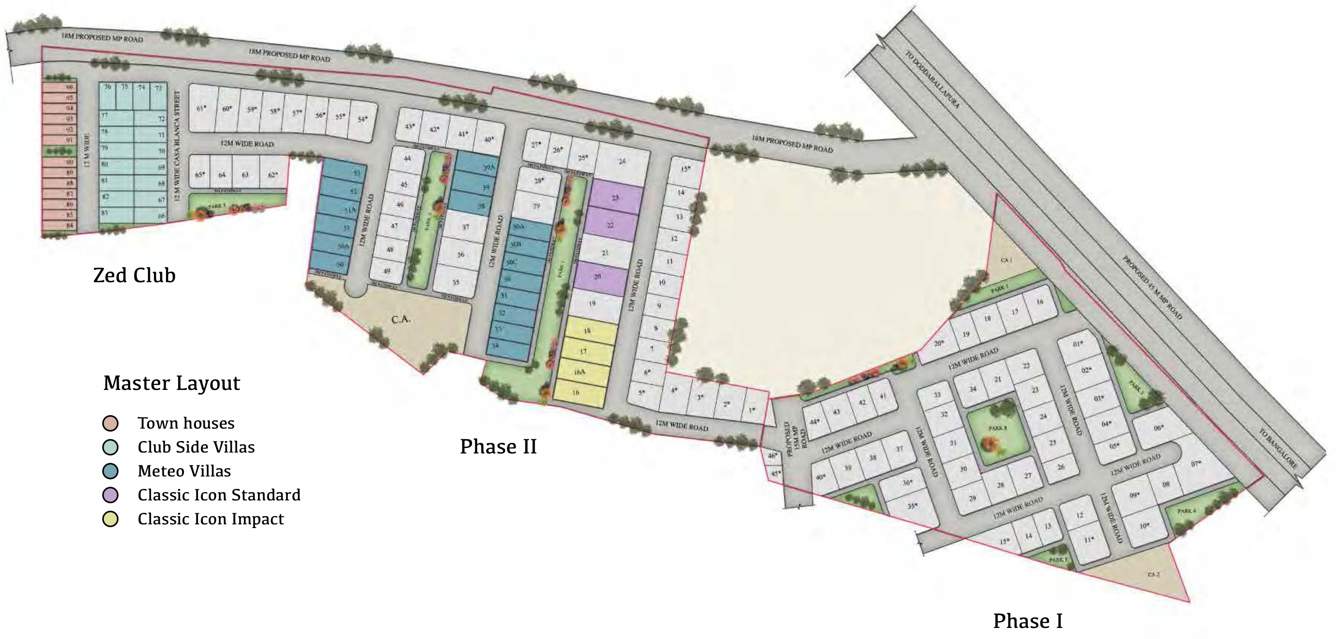
ZED Earth is a housing community located in Doddaballapur, Bangalore. Fully constructed, it offers 218 units of 3 and 4 BHK villas. Amenities like gymnasium, pool, golf course and open air theatre are offered. ZED is a pioneer in the field of real estate development. Doddaballapur is situated on the Bangalore-Hindupur State Highway. It has a distance of 52.2 kilometers from HAL Bangalore International Airport. The area abounds in many good schools (M.S.V. Public School), hospitals (Ashwini Hospi...View more
Project Specifications
- 3 BHK
- 4 BHK
- Gymnasium
- Swimming Pool
- Children's play area
- Club House
- Golf Course
- Indoor Games
- Rain Water Harvesting
- 24 X 7 Security
- Power Backup
- Smoke Detectors
- Tertiary Treatment Plants
- Community Hall
- 24X7 Water Supply
- Car Parking
- Badminton Court
- Basketball Court
- CCTV
- Library
- Sewage Treatment Plant
- Tennis Court
- Fire Fighting System
- Landscaped Gardens
- Video Door Security
- Open Air Theatre
- Cigar Lounge
- Conference Room
- Solar Water Heating
- Restaurant
- Bar/Chill-out Lounge
- Lawn Tennis Court
- Fire Sprinklers
ZED Earth Gallery
Payment Plans

About ZED Builder

- Years of experience29
- Total Projects11
- Ongoing Projects1














































































