
12 Photos
PROJECT RERA ID : Rera not found
Confident Gold Coast

Price on request
Builder Price
3, 4 BHK
Villa
3,000 - 5,000 sq ft
Builtup area
Project Location
Devanahalli, Bangalore
Overview
- Apr'17Possession Start Date
- CompletedStatus
- 30 AcresTotal Area
- 50Total Launched villas
- Mar'10Launch Date
- ResaleAvailability
Salient Features
- Akash Medical College Hospital (1.0 Km)
- Daffodils School (1.0 Km)
More about Confident Gold Coast
Confident Gold Coast is one of the popular Residential Developments in Devanahalli neighborhood of Bangalore. It is among the Upcoming Projects of Confident Group. The landscape is beautiful with spacious and over 50 Houses. Confident Gold Coast Bangalore is a recently launched residential project of Confident Group. The township has 50 high-end designer Villas ranging from 3000 sq. ft. to 5000 sq. ft. It is merely 3 minutes drive from Bangalore International Airport.
Approved for Home loans from following banks
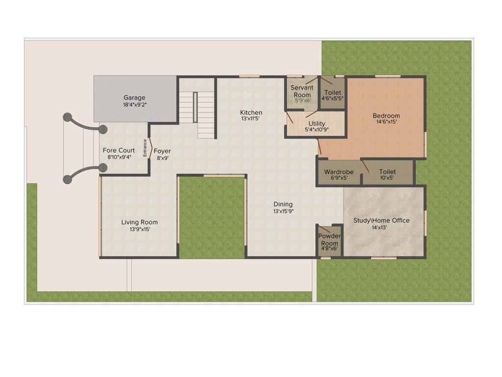
Confident Gold Coast Floor Plans
- 3 BHK
- 4 BHK
| Floor Plan | Area | Builder Price |
|---|---|---|
![]() | 3000 sq ft (3BHK+4T + Study Room) | - |
Report Error
Our Picks
- PriceConfigurationPossession
- Current Project
Confident Gold Coastby Confident GroupDevanahalli, BangaloreData Not Available3,4 BHK Villa3,000 - 5,000 sq ftApr '17 - Recommended
Lifestyle Legacyby Sobha LimitedDevanahalli, BangaloreData Not Available4 BHK Villa4,973 - 7,513 sq ftApr '16 - Recommended
Oakshire Phase 2 Wing 3 4 9 and 10by Sobha LimitedDevanahalli, BangaloreData Not Available4 BHK Villa2,630 - 2,667 sq ftMay '27
Confident Gold Coast Amenities
- Gymnasium
- Swimming Pool
- Children's play area
- Club House
- Multipurpose Room
- Sports Facility
- Indoor Games
- Rain Water Harvesting
Confident Gold Coast Specifications
Doors
Main:
Teak Wood Frame
Flooring
Kitchen:
Vitrified Tiles
Living/Dining:
Vitrified Tiles
Master Bedroom:
Vitrified Tiles
Other Bedroom:
Vitrified Tiles
Toilets:
Granamite Tiles
Gallery
Confident Gold CoastElevation
Confident Gold CoastVideos
Confident Gold CoastFloor Plans
Confident Gold CoastNeighbourhood
Contact NRI Helpdesk on
Whatsapp(Chat Only)
Whatsapp(Chat Only)
+91-96939-69347
Contact Helpdesk on
Whatsapp(Chat Only)
Whatsapp(Chat Only)
+91-96939-69347
About Confident Group

- 92
Total Projects - 10
Ongoing Projects - RERA ID
Confident Group is one of the fastest growing conglomerates, headquartered in Bangalore with multinational operations spread across Dubai, Bangalore, Kochi, Singapore, London and Trivandrum. Confident Group has six diversified verticals Infrastructure, Hospitality, Aviation, Entertainment, Education and Health care. The Group has in depth quality and systems orientation and is accredited with ISO 9001, 14001 and 18001. The Group is also a Zero Debt, Zero Deviation Group. The entire Group owns, i... read more
Similar Projects
- PT ASSIST
Sobha Lifestyle Legacyby Sobha LimitedDevanahalli, BangalorePrice on request - PT ASSIST
Sobha Oakshire Phase 2 Wing 3 4 9 and 10by Sobha LimitedDevanahalli, BangalorePrice on request - PT ASSIST
Sobha Oakshireby Sobha LimitedDevanahalli, Bangalore₹ 4.60 Cr - ₹ 4.66 Cr - PT ASSIST
Fortius Under The Sun Phase 1by FortiusDevanahalli, BangalorePrice on request - PT ASSIST
Century Sports Villageby Century Real EstateDevanahalli, BangalorePrice on request
Discuss about Confident Gold Coast
comment
Disclaimer
PropTiger.com is not marketing this real estate project (“Project”) and is not acting on behalf of the developer of this Project. The Project has been displayed for information purposes only. The information displayed here is not provided by the developer and hence shall not be construed as an offer for sale or an advertisement for sale by PropTiger.com or by the developer.
The information and data published herein with respect to this Project are collected from publicly available sources. PropTiger.com does not validate or confirm the veracity of the information or guarantee its authenticity or the compliance of the Project with applicable law in particular the Real Estate (Regulation and Development) Act, 2016 (“Act”). Read Disclaimer
The information and data published herein with respect to this Project are collected from publicly available sources. PropTiger.com does not validate or confirm the veracity of the information or guarantee its authenticity or the compliance of the Project with applicable law in particular the Real Estate (Regulation and Development) Act, 2016 (“Act”). Read Disclaimer




























