

- Possession Start DateNov'18
- StatusCompleted
- Total Launched villas66
- Launch DateJan'15
- AvailabilityNew and Resale
Salient Features
- Spacious properties
- Equipped with amenities like landscaped gardens, swimming pool, olympic size swimming pool, tree plantation, cycling and jogging tracks
- Accessibility to key landmarks
- Easily reachable schools, malls, shopping, hospitals
More about Arvind Ibis
Arvind Infra Iris Group has developed the best living quarters in the Thol region of Ahmedabad. This project has the availability luxurious apartments which are all set for moving in. All the daily requirements like bank, ATM, train station, metro station, bus station, hospital, play school, petrol pump, park, school etc are present near the neighbourhood. This region has many heritage real estate developments which are almost complete. The different amenities of the project are a playground for...View more
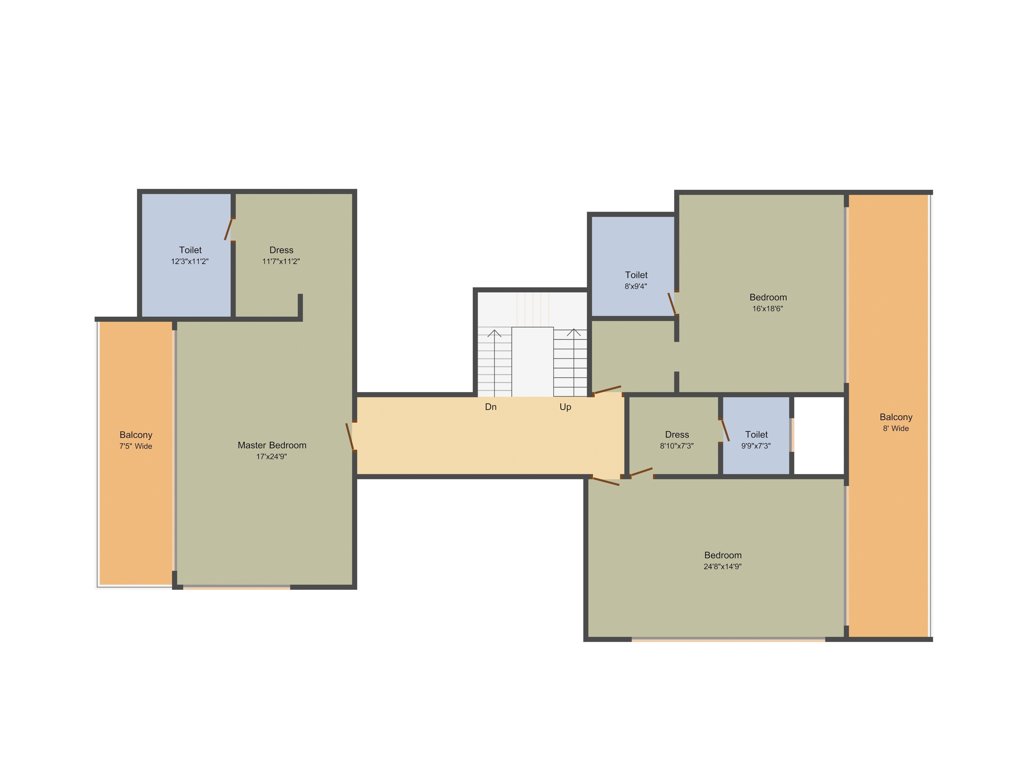
- 5 BHK
- Gymnasium
- Swimming Pool
- Children's play area
- Club House
- Cafeteria
- Golf Course
- Sports Facility
- 24 X 7 Security
- Jogging Track
- Power Backup
- Indoor Games
- Car Parking
- Banquet Hall
- Library
- Wellness Club
- Cricket Pitch
- Basketball Court
- Tennis Court
- Badminton Court
- Squash Court
- Pools And Rides
- Community Hall
- Landscape Garden and Tree Planting
- Restaurant
- Sauna Bath
- Discotheque
- Mini Theatre
- Yoga/Meditation Area
- Jacuzzi
- Billiards/Snooker Table
Arvind Ibis Gallery
About Arvind Smartspaces

- Years of experience18
- Total Projects27
- Ongoing Projects9




















































