India's best property portal to buy property in India - Proptiger.com
New Launch
Possession : Dec'28
Rera
Neeldev Shivalaya 24
Price on request
Builder Price
Configuration
3, 4 BHK
Carpet Area1 sq M = 10.76 sq ft
1,245 - 1,393 sq ft
Possession Status
Launch
QR Image
Overview
  • Possession Start Date
    Dec'28
  • Status
    Launch
  • Total Area
    0.3 Acres
  • Launch Date
    Mar'24
  • Availability
    New
  • RERA ID
    PR/GJ/AHMEDABAD/AHMEDABAD CITY/Ahmedabad Municipal Corporation/MAA13882/290724/311228

Project Specifications

Doors
Internal:
Laminated Flush Door
Main:
Veneered Door
Flooring
Kitchen:
Vitrified Tiles
Living/Dining:
Vitrified Tiles
Master Bedroom:
Vitrified Tiles
Other Bedroom:
Vitrified Tiles
Toilets:
Anti Skid Ceramic Tiles
Balcony:
Anti skid ceramic tiles
Walls
Exterior:
Acrylic Paint
Kitchen:
Glazed Tiles Dado up to Lintel Level
Toilets:
Glazed Tiles Dado up to 7 Feet Height Above Platform
Interior:
Putty on Walls
Fittings
Kitchen:
Granite Platform with Stainless Steel Sink and Drain Board
Toilets:
Provision For Exhaust Fan
Others
Points:
Hall
Windows:
Aluminium Powder Coated Windows
Wiring:
Three Face Electrical Supply with Concealed MCB Copper Wiring
Switches:
Modular switches
Frame Structure:
Earthquake resistant RCC framed structure
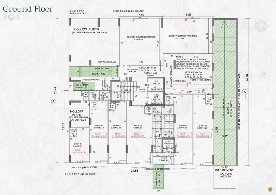
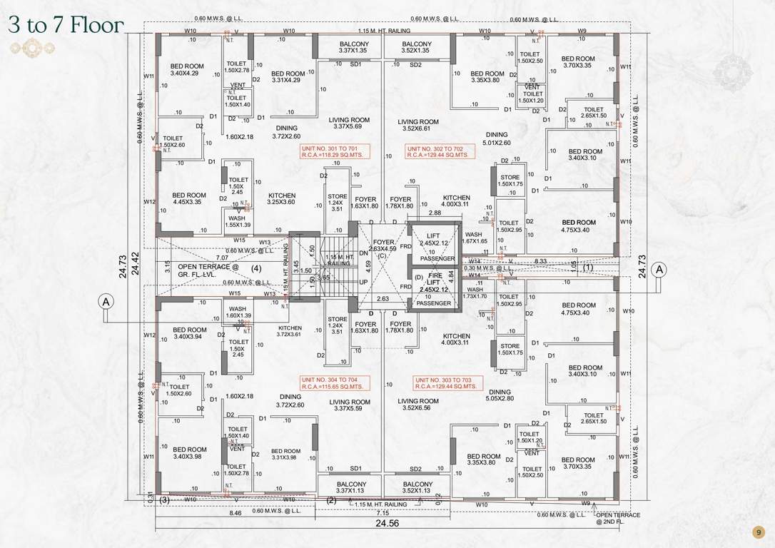
Neeldev Shivalaya 24 Floor Plans
  • 3 BHK
  • 4 BHK
-
-
Neeldev Shivalaya 24 Amenities

About Neeldev Buildcon LLP

  • Total Projects1
  • Ongoing Projects1

More projects by Neeldev Buildcon LLP

Similar Projects

Developer Network

  • 400+
    Reputed Developers